Back to Search
107 Romaine Ct, Cary, NC 27513
107 Romaine Ct, Cary, NC 27513
107 Romaine Ct, Cary, NC 27513
107 Romaine Ct, Cary, NC 27513
107 Romaine Ct, Cary, NC 27513
107 Romaine Ct, Cary, NC 27513
107 Romaine Ct, Cary, NC 27513

107 Romaine Ct Cary, NC 27513

1Views
0Saves

$475,000

ACTIVE
Beds
3
Baths
3
Sqft
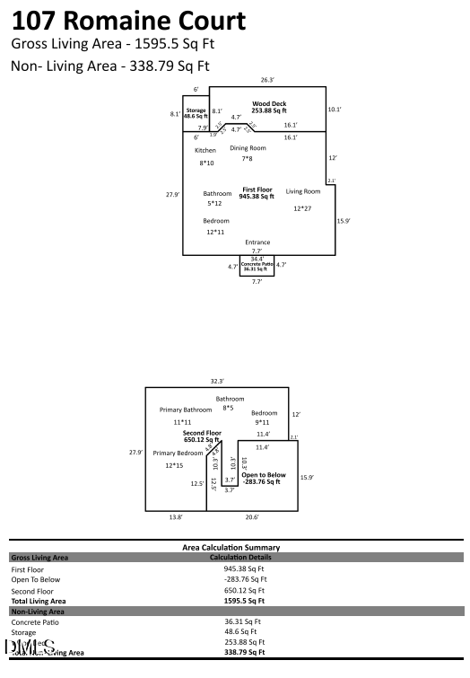
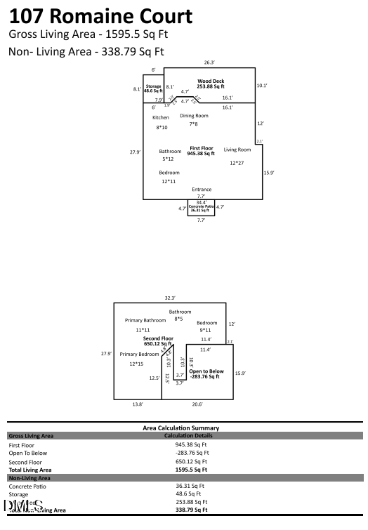
1,595.5
Acres
0.16
Year
1991
Days on Site
1
Property Type
Residential
Sub Type
Single Family
Per Square Foot
$298
Date Listed
Jan 22, 2026

Description of 107 Romaine Ct, Cary, NC 27513

Listing details for 107 Romaine Ct, Cary, NC 27513 : Welcome home to this hidden gem on a quiet cul-de-sac in the heart of Cary. This inviting home offers bright, comfortable living spaces and a layout that fits today's lifestyle, whether you're relaxing at home or entertaining guests. Enjoy a private outdoor setting while staying just minutes from Cary's best shopping, dining, parks, greenways, RTP, and major commuter routes. Peaceful, convenient, and perfectly located.
Listing Updated : 01-22-2026 at 05:30 PM EST
Home Details
107 Romaine Ct, Cary, NC 27513
Status
Active
MLS #ID
10142634
Price
$475,000
Bedrooms
3
Bathrooms
3
Square Footage
1,595.5
Acres
0.16
Year
1991
Days on Site
1
Property Type
Residential
Property Sub Type
Single-Family
Price per Sq Ft
$298
Date Listed
Jan 22, 2026
Community Information for 107 Romaine Ct, Cary, NC 27513
Address
107 Romaine Ct
City Cary
State
North Carolina
Zip Code 27513
County Wake
Subdivision Brookgreen
Schools
Utilities
Sewer
Public Sewer
Water Source
Public
Interior
Interior Features
Bathtub/Shower Combination, Ceiling Fan(s), Eat-in Kitchen, Granite Counters, Living/Dining Room Combination, Open Floorplan, Soaking Tub, Storage and Water Closet
Appliances
Dishwasher, Free-Standing Range, Microwave and Refrigerator
Heating
Forced Air and Heat Pump
Cooling
Ceiling Fan(s), Central Air and Heat Pump
Fireplace
No
Exterior
Exterior
Private Yard
Roof
Shingle
Foundation
Block and Concrete Perimeter
HOA
Has HOA
Yes
Services included
None
HOA fee
$92 Annually
Additional Information
Styles
Traditional
Price per Sq Ft
$298
Listed By

Fawn Miles, 919-622-9780, Mark Spain Real Estate

Source

Triangle, MLS, MLS#: 10142634

Comments
Home Worth Check

Interested in 107 Romaine Ct, Cary NC, 27513?

By proceeding, you consent to receive calls, texts and voicemails at the number you provided (may be recorded and may be autodialed and use prerecorded and artificial voices), and email, from Raleigh Realty about your inquiry and other home-related matters. Msg/data rates may apply. This consent applies even if you are on a do not call list and is not a condition of any purchase.

Location of 107 Romaine Ct, Cary, NC 27513

Google Map
Mortgage Calculator
Listing Price
Down Payment
Interest Rate
This beautiful 3 beds 3 baths home is located at 107 Romaine Ct, Cary, NC 27513 and is listed for sale at $475,000.00. This home was built in 1991, contains 1595.5 square feet of living space, and sits on a 0.16 acre lot. This residential home is priced at $297.71 per square foot.

If you'd like to request a tour or more information on 107 Romaine Ct, Cary, NC 27513, please call us at 919​-249​-8536 so that we can assist you in your real estate search. To find homes like 107 Romaine Ct, Cary, NC 27513, you can search homes for sale in Cary , or visit the neighborhood of Brookgreen , or by 27513 . We are here to help when you're ready to contact us!

Schools Near 107 Romaine Ct, Cary, NC 27513

Home Details
107 Romaine Ct, Cary, NC 27513
Status
Active
MLS #ID
10142634
Price
$475,000
Bedrooms
3
Bathrooms
3
Square Footage
1,595.5
Acres
0.16
Year
1991
Days on Site
1
Property Type
Residential
Property Sub Type
Single-Family
Price per Sq Ft
$298
Date Listed
Jan 22, 2026
Community Information for 107 Romaine Ct, Cary, NC 27513
Address
107 Romaine Ct
City Cary
State
North Carolina
Zip Code 27513
County Wake
Subdivision Brookgreen
Schools
Utilities
Sewer
Public Sewer
Water Source
Public
Interior
Interior Features
Bathtub/Shower Combination, Ceiling Fan(s), Eat-in Kitchen, Granite Counters, Living/Dining Room Combination, Open Floorplan, Soaking Tub and Storage
Appliances
Dishwasher, Free-Standing Range and Microwave
Heating
Forced Air and Heat Pump
Cooling
Ceiling Fan(s) and Central Air
Fireplace
No
Exterior
Exterior
Private Yard
Roof
Shingle
Foundation
Block and Concrete Perimeter
HOA
Has HOA
Yes
Services included
None
HOA fee
$92 Annually
Additional Information
Styles
Traditional
Price per Sq Ft
$298
Listed By

Fawn Miles, 919-622-9780, Mark Spain Real Estate

Source

Triangle, MLS, MLS#: 10142634

Comments

Homes Similar to 107 Romaine Ct, Cary, NC 27513

Related Blogs
Related Videos
HomeCaryBrookgreen
What Our Customers Say
reviews
(631)
Panel only seen by widget owner
What's your home worth?
Have a top local Realtor give you a FREE Comparative Market Analysis