Back to Search
144 Skipping Rock Ln, Garner, NC 27529
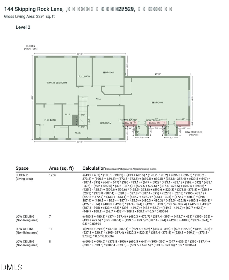
144 Skipping Rock Ln, Garner, NC 27529
144 Skipping Rock Ln, Garner, NC 27529
144 Skipping Rock Ln, Garner, NC 27529
144 Skipping Rock Ln, Garner, NC 27529
144 Skipping Rock Ln, Garner, NC 27529
144 Skipping Rock Ln, Garner, NC 27529

144 Skipping Rock Ln Garner, NC 27529

$450,000

ACTIVE
Beds
4
Baths
3
Sqft
2,205
Acres
0.28
Year
2002
Days on Site
1
Property Type
Residential
Sub Type
Single Family
Per Square Foot
$204
Date Listed
Oct 2, 2025

Description of 144 Skipping Rock Ln, Garner, NC 27529

Listing details for 144 Skipping Rock Ln, Garner, NC 27529 : Welcome to this beautifully maintained, move-in ready home that truly offers it all. Step inside to find beautiful hardwood floors throughout the first floor with a fully renovated kitchen with stainless steel appliances that convey, brand new high quality carpet on the second floor with hardwood floors in the primary bedroom and renovated bathrooms, including a stunning primary suite featuring a double vanity and double shower. Recent major upgrades provide peace of mind with a new HVAC system (2021) , new roof (2023), and new double 50 gallon water heater (2022) so you'll never run out of hot water, already in place. One of the most unique features of this home is the cool built-in Irish pub, which can easily be transformed into a stylish library, office, dining room or additional entertaining space. The bright and inviting sunroom provides yet another flexible area, ideal for an office, reading nook, or relaxing retreat. The outdoor space is just as impressive as the interior with fruit trees such as fig, peach and pear. The beautifully landscaped yard includes flower beds, a cozy firepit, and a hot tub that conveys with the property. Professionally designed lighting, including yard lights in the front and back along with string lights, creates the perfect setting for hosting friends and family. Additional highlights include a spacious two-car garage and a large bonus room that can serve as a fourth bedroom, offering plenty of flexibility for your lifestyle needs. With thoughtful updates, distinctive features, and a yard designed for both beauty and entertainment, this property is truly one-of-a-kind. Don't miss the opportunity to make 144 Skipping Rock Lane your new home.
Listing Updated : 10-02-2025 at 02:00 PM EST

Open Houses

4
Sat, October
10:00 AM - 12:00 PM
5
Sun, October
11:00 AM - 1:00 PM
Home Details
144 Skipping Rock Ln, Garner, NC 27529
Status
Active
MLS #ID
10125138
Price
$450,000
Bedrooms
4
Bathrooms
3
Square Footage
2,205
Acres
0.28
Year
2002
Days on Site
1
Property Type
Residential
Property Sub Type
Single-Family
Price per Sq Ft
$204
Date Listed
Oct 2, 2025
Community Information for 144 Skipping Rock Ln, Garner, NC 27529
Address
144 Skipping Rock Ln
State
North Carolina
Zip Code 27529
County Wake
Subdivision South Creek
Schools
Utilities
Sewer
Public Sewer
Water Source
Public
Interior
Interior Features
Bar, Ceiling Fan(s), Double Vanity, Kitchen Island, Pantry, Walk-In Closet(s) and Walk-In Shower
Heating
Electric, Forced Air and Heat Pump
Cooling
Central Air and Heat Pump
Fireplace
No
Exterior
Exterior
Fenced Yard, Fire Pit, Lighting and Private Yard
Roof
Shingle
Garage Spaces
2
Foundation
HOA
Has HOA
Yes
Services included
None
HOA fee
$94.5 Annually
Additional Information
Styles
Traditional
Price per Sq Ft
$204
Listed By

Janet Tsz Ki Lee, 626-353-7368, Compass -- Cary

Source

Triangle, MLS, MLS#: 10125138

Source Logo
Comments
Home Worth Check

Interested in 144 Skipping Rock Ln, Garner NC, 27529?

By proceeding, you consent to receive calls, texts and voicemails at the number you provided (may be recorded and may be autodialed and use prerecorded and artificial voices), and email, from Raleigh Realty about your inquiry and other home-related matters. Msg/data rates may apply. This consent applies even if you are on a do not call list and is not a condition of any purchase.

Location of 144 Skipping Rock Ln, Garner, NC 27529

Google Map
Mortgage Calculator
Listing Price
Down Payment
Interest Rate
This beautiful 4 beds 3 baths home is located at 144 Skipping Rock Ln, Garner, NC 27529 and is listed for sale at $450,000.00. This home was built in 2002, contains 2205 square feet of living space, and sits on a 0.28 acre lot. This residential home is priced at $204.08 per square foot.

If you'd like to request a tour or more information on 144 Skipping Rock Ln, Garner, NC 27529, please call us at 919​-249​-8536 so that we can assist you in your real estate search. To find homes like 144 Skipping Rock Ln, Garner, NC 27529, you can search homes for sale in Garner , or visit the neighborhood of South Creek , or by 27529 . We are here to help when you're ready to contact us!

Schools Near 144 Skipping Rock Ln, Garner, NC 27529

Home Details
144 Skipping Rock Ln, Garner, NC 27529
Status
Active
MLS #ID
10125138
Price
$450,000
Bedrooms
4
Bathrooms
3
Square Footage
2,205
Acres
0.28
Year
2002
Days on Site
1
Property Type
Residential
Property Sub Type
Single-Family
Price per Sq Ft
$204
Date Listed
Oct 2, 2025
Community Information for 144 Skipping Rock Ln, Garner, NC 27529
Address
144 Skipping Rock Ln
State
North Carolina
Zip Code 27529
County Wake
Subdivision South Creek
Schools
Utilities
Sewer
Public Sewer
Water Source
Public
Interior
Interior Features
Bar, Ceiling Fan(s), Double Vanity, Kitchen Island, Pantry and Walk-In Closet(s)
Heating
Electric and Forced Air
Cooling
Central Air and Heat Pump
Fireplace
No
Exterior
Exterior
Fenced Yard, Fire Pit and Lighting
Roof
Shingle
Garage Spaces
2
Foundation
HOA
Has HOA
Yes
Services included
None
HOA fee
$94.5 Annually
Additional Information
Styles
Traditional
Price per Sq Ft
$204
Listed By

Janet Tsz Ki Lee, 626-353-7368, Compass -- Cary

Source

Triangle, MLS, MLS#: 10125138

Source Logo
Comments

Homes Similar to 144 Skipping Rock Ln, Garner, NC 27529

Related Videos
HomeGarnerSouth Creek
What's your home worth?
Have a top local Realtor give you a FREE Comparative Market Analysis