$800,000
Active
5
Beds
4
Baths
3323
Sqft
0.46
Acres
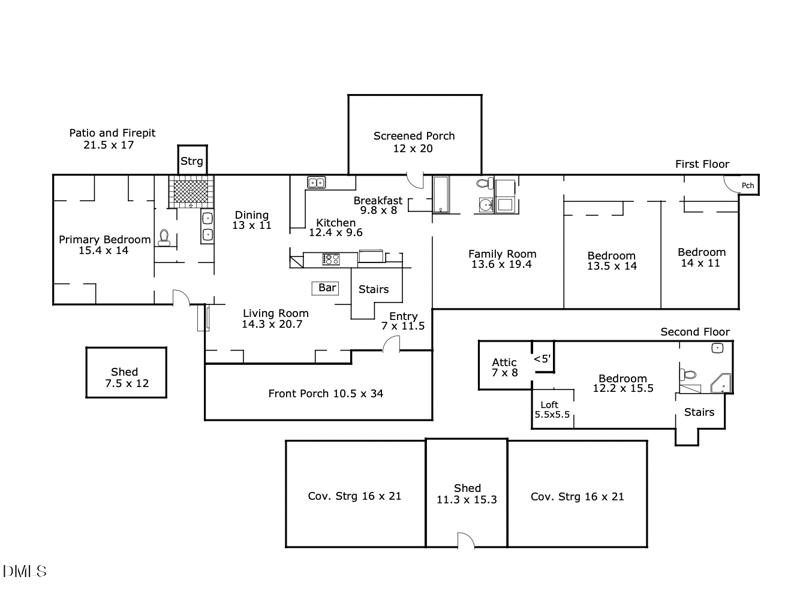
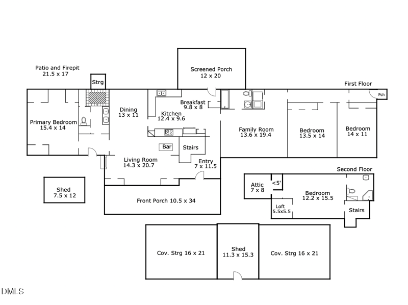
215 Hopesworth Ct, Hillsborough, NC 27278
MLS#: 10145193






$829,000
ACTIVESam Poole, 919-724-0424, Nest Realty of the Triangle
Triangle, MLS, MLS#: 10150722


Sam Poole, 919-724-0424, Nest Realty of the Triangle
Triangle, MLS, MLS#: 10150722
