Back to Search
3433 Dover Rd, Durham, NC 27707
3433 Dover Rd, Durham, NC 27707
3433 Dover Rd, Durham, NC 27707
3433 Dover Rd, Durham, NC 27707
3433 Dover Rd, Durham, NC 27707
3433 Dover Rd, Durham, NC 27707
3433 Dover Rd, Durham, NC 27707

3433 Dover Rd Durham, NC 27707

$1,315,000

ACTIVE
Beds
4
Baths
4
Sqft
3,081
Acres
0.46
Year
1920
Days on Site
1
Property Type
Residential
Sub Type
Single Family
Per Square Foot
$427
Date Listed
Mar 6, 2026

Description of 3433 Dover Rd, Durham, NC 27707

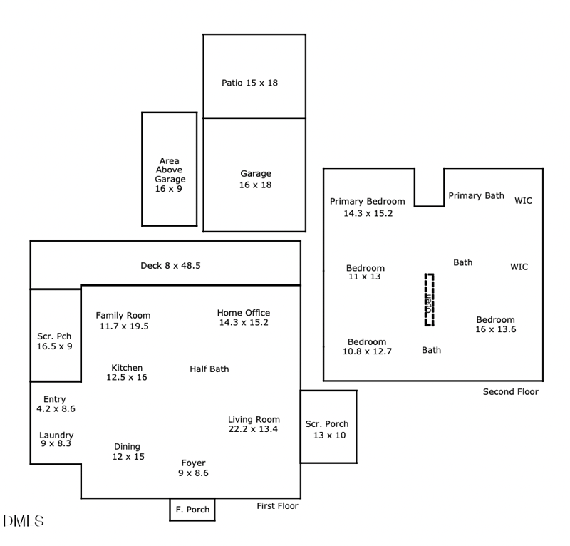
Listing details for 3433 Dover Rd, Durham, NC 27707 : Tired of quiet luxury? Try honest beauty, a bit of tasteful pizzaz, and a lot of charm. 3433 Dover has it all! This timeless classic in Old Hope Valley was extensively renovated with the highest quality materials to gently bring her up to date. At the same time, the old girl still feels decidedly herself, winsome as ever! A perfect modern floorplan offers room to gather and room to do your own thing, all bathed in abundant natural light. 4 beds, 3.5 baths, stunning floors, high end appliances, a dreamy laundry room, and 2 screen porches await! All this on an exceptional lot with a killer backyard, artfully landscaped and ready to enjoy.
Listing Updated : 03-06-2026 at 1:15 PM EST
Home Details
3433 Dover Rd, Durham, NC 27707
Status
Active
MLS #ID
10150926
Price
$1,315,000
Bedrooms
4
Bathrooms
4
Square Footage
3,081
Acres
0.46
Year
1920
Days on Site
1
Property Type
Residential
Property Sub Type
Single-Family
Price per Sq Ft
$427
Date Listed
Mar 6, 2026
Community Information for 3433 Dover Rd, Durham, NC 27707
Address
3433 Dover Rd
State
North Carolina
Zip Code 27707
County Durham
Schools
Utilities
Sewer
Public Sewer
Water Source
Public
Interior
Interior Features
Bar, Bathtub/Shower Combination, Bookcases, Built-in Features, Crown Molding, Double Vanity, Eat-in Kitchen, Entrance Foyer, Keeping Room, Kitchen Island, Recessed Lighting, Separate Shower, Smooth Ceilings, Soaking Tub, Walk-In Closet(s) and Wet Bar
Appliances
Bar Fridge and Gas Range
Heating
Forced Air
Cooling
Central Air
Fireplace
No
Exterior
Exterior
Basketball Court, Fenced Yard, Playground and Rain Gutters
Roof
Shingle
Garage Spaces
1
Foundation
Combination
HOA
Has HOA
None
Additional Information
Styles
Colonial, National Historic Designation and Traditional
Price per Sq Ft
$427
Listing Provided By

Sam Poole, 919-724-0424, Nest Realty of the Triangle

Source

Triangle, MLS, MLS#: 10150926

Comments
Home Worth Check

Interested in 3433 Dover Rd, Durham NC, 27707?

By proceeding, you consent to receive calls, texts and voicemails at the number you provided (may be recorded and may be autodialed and use prerecorded and artificial voices), and email, from Raleigh Realty about your inquiry and other home-related matters. Msg/data rates may apply. This consent applies even if you are on a do not call list and is not a condition of any purchase.

Location of 3433 Dover Rd, Durham, NC 27707

Google Map
Mortgage Calculator
Listing Price
Down Payment
Interest Rate
This beautiful 4 beds 4 baths home is located at 3433 Dover Rd, Durham, NC 27707 and is listed for sale at $1,315,000.00. This home was built in 1920, contains 3081 square feet of living space, and sits on a 0.46 acre lot. This residential home is priced at $426.81 per square foot.

If you'd like to request a tour or more information on 3433 Dover Rd, Durham, NC 27707, please call us at 919​-249​-8536 so that we can assist you in your real estate search. To find homes like 3433 Dover Rd, Durham, NC 27707, you can search homes for sale in Durham , or visit the neighborhood of Not In A Subdivision , or by 27707 . We are here to help when you're ready to contact us!
Home Details
3433 Dover Rd, Durham, NC 27707
Status
Active
MLS #ID
10150926
Price
$1,315,000
Bedrooms
4
Bathrooms
4
Square Footage
3,081
Acres
0.46
Year
1920
Days on Site
1
Property Type
Residential
Property Sub Type
Single-Family
Price per Sq Ft
$427
Date Listed
Mar 6, 2026
Community Information for 3433 Dover Rd, Durham, NC 27707
Address
3433 Dover Rd
State
North Carolina
Zip Code 27707
County Durham
Schools
Utilities
Sewer
Public Sewer
Water Source
Public
Interior
Interior Features
Bar, Bathtub/Shower Combination, Bookcases, Built-in Features, Crown Molding, Double Vanity, Eat-in Kitchen, Entrance Foyer, Keeping Room, Kitchen Island, Recessed Lighting, Separate Shower, Smooth Ceilings, Soaking Tub and Walk-In Closet(s)
Appliances
Bar Fridge and Gas Range
Heating
Forced Air
Cooling
Central Air
Fireplace
No
Exterior
Exterior
Basketball Court, Fenced Yard and Playground
Roof
Shingle
Garage Spaces
1
Foundation
Combination
HOA
Has HOA
None
Additional Information
Styles
Colonial and National Historic Designation
Price per Sq Ft
$427
Listing Provided By

Sam Poole, 919-724-0424, Nest Realty of the Triangle

Source

Triangle, MLS, MLS#: 10150926

Comments

Homes Similar to 3433 Dover Rd, Durham, NC 27707

Related Videos
HomeDurhamNot In A Subdivision
What's your home worth?
Have a top local Realtor give you a FREE Comparative Market Analysis