Back to Search
541 Bragg St, Raleigh, NC 27610
541 Bragg St, Raleigh, NC 27610
541 Bragg St, Raleigh, NC 27610

541 Bragg St Raleigh, NC 27610

$595,000

COMING SOON
Beds
3
Baths
3
Sqft
1,724
Acres
0.14
Year
2026
Days on Site
1
Property Type
Residential
Sub Type
Condominium
Per Square Foot
$345
Date Listed
Mar 5, 2026

Description of 541 Bragg St, Raleigh, NC 27610

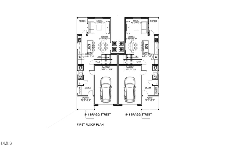
Listing details for 541 Bragg St, Raleigh, NC 27610 : Enjoy easy downtown living in this brand-new townhome-style condo, ideally located just steps from one of the city's many greenway paths--giving you direct access to everything the city has to offer right outside your doorstep. This home features 3 bedrooms and an open-concept main living area, perfect for entertaining or everyday living. Designed with lifestyle in mind, the property offers four separate outdoor gathering spaces, providing plenty of room to relax, host friends, or enjoy fresh air throughout the day. Kitchen was thoughtfully designed with with KitchenAid appliances, plenty of counter space plus Moen finishes in the kitchen and bathrooms. Take a short ride or stroll along the greenway to the beautiful John Chavis Memorial Park, a 28+ acre park featuring trails, recreation areas, and green space to explore. The greenway can also take you to NC Museum of Art, Dix Park NC State and Meredith College. You'll also love the diverse selection of international dining options located just minutes from your front door. Experience the perfect blend of low maintenance living with modern comfort, outdoor access, and vibrant city at your fingertips.
Listing Updated : 03-05-2026 at 5:45 PM EST
Home Details
541 Bragg St, Raleigh, NC 27610
Status
Coming Soon
MLS #ID
10150714
Price
$595,000
Bedrooms
3
Bathrooms
3
Square Footage
1,724
Acres
0.14
Year
2026
Days on Site
1
Property Type
Residential
Property Sub Type
Condominium
Price per Sq Ft
$345
Date Listed
Mar 5, 2026
Community Information for 541 Bragg St, Raleigh, NC 27610
Address
541 Bragg St
State
North Carolina
Zip Code 27610
County Wake
Schools
Elementary Fuller
Middle Carnage
Utilities
Sewer
Public Sewer
Water Source
Public
Interior
Heating
Electric
Cooling
Central Air
Fireplace
No
Exterior
Exterior
Balcony and Rain Gutters
Roof
Shingle
Garage Spaces
1
Foundation
Concrete and Slab
HOA
Has HOA
Yes
Services included
None
HOA fee
$150 Monthly
Additional Information
Styles
Modern
Price per Sq Ft
$345
Listing Provided By

Jason Queen, 919-606-2905, Monarch Realty Co.

Source

Triangle, MLS, MLS#: 10150714

Comments

Interested in 541 Bragg St, Raleigh NC, 27610?

By proceeding, you consent to receive calls, texts and voicemails at the number you provided (may be recorded and may be autodialed and use prerecorded and artificial voices), and email, from Raleigh Realty about your inquiry and other home-related matters. Msg/data rates may apply. This consent applies even if you are on a do not call list and is not a condition of any purchase.

Location of 541 Bragg St, Raleigh, NC 27610

Google Map
Mortgage Calculator
Listing Price
Down Payment
Interest Rate
This beautiful 3 beds 3 baths home is located at 541 Bragg St, Raleigh, NC 27610 and is listed for sale at $595,000.00. This home was built in 2026, contains 1724 square feet of living space, and sits on a 0.14 acre lot. This residential home is priced at $345.13 per square foot.

If you'd like to request a tour or more information on 541 Bragg St, Raleigh, NC 27610, please call us at 919​-249​-8536 so that we can assist you in your real estate search. To find homes like 541 Bragg St, Raleigh, NC 27610, you can search homes for sale in Raleigh , or visit the neighborhood of Not In A Subdivision , or by 27610 . We are here to help when you're ready to contact us!
Home Details
541 Bragg St, Raleigh, NC 27610
Status
Coming Soon
MLS #ID
10150714
Price
$595,000
Bedrooms
3
Bathrooms
3
Square Footage
1,724
Acres
0.14
Year
2026
Days on Site
1
Property Type
Residential
Property Sub Type
Condominium
Price per Sq Ft
$345
Date Listed
Mar 5, 2026
Community Information for 541 Bragg St, Raleigh, NC 27610
Address
541 Bragg St
State
North Carolina
Zip Code 27610
County Wake
Schools
Elementary Fuller
Middle Carnage
Utilities
Sewer
Public Sewer
Water Source
Public
Interior
Heating
Electric
Cooling
Central Air
Fireplace
No
Exterior
Exterior
Balcony and Rain Gutters
Roof
Shingle
Garage Spaces
1
Foundation
Concrete and Slab
HOA
Has HOA
Yes
Services included
None
HOA fee
$150 Monthly
Additional Information
Styles
Modern
Price per Sq Ft
$345
Listing Provided By

Jason Queen, 919-606-2905, Monarch Realty Co.

Source

Triangle, MLS, MLS#: 10150714

Comments

Homes Similar to 541 Bragg St, Raleigh, NC 27610

Related Videos
HomeRaleighNot In A Subdivision
What's your home worth?
Have a top local Realtor give you a FREE Comparative Market Analysis