Back to Search
112 Imagine Way, Pittsboro, NC 27312
112 Imagine Way, Pittsboro, NC 27312 3D Tour
112 Imagine Way, Pittsboro, NC 27312 Explore 3D Tour
112 Imagine Way, Pittsboro, NC 27312
112 Imagine Way, Pittsboro, NC 27312
112 Imagine Way, Pittsboro, NC 27312
112 Imagine Way, Pittsboro, NC 27312

112 Imagine Way Pittsboro, NC 27312

$705,000

ACTIVE
Beds
3
Baths
3
Sqft
2,374
Acres
0.19
Year
2023
Days on Site
21
Property Type
Residential
Sub Type
Single Family
Per Square Foot
$297
Date Listed
Feb 7, 2026

Description of 112 Imagine Way, Pittsboro, NC 27312

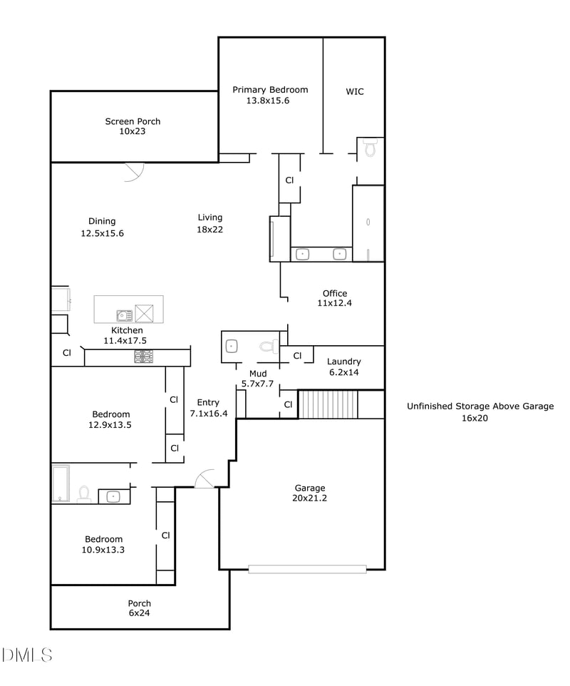
Listing details for 112 Imagine Way, Pittsboro, NC 27312 : BETTER THAN NEW single-level living in Encore, Chatham Park's 55+ community! This beautifully designed home sits on a premium homesite with open space on TWO SIDES in a completed phase of the development without construction traffic & noise or retaining walls. David Weekley's EDGEMONT floorplan is one of the wider layouts to accommodate the home's ranch design, which features a bright, open-concept living area with GAS FIREPLACE and a separate home office w/ French doors. The central chef's kitchen includes a large island, tile backsplash, quartz counters & stainless appliances. All three bedrooms are on the main level, including a private primary suite w/ zero-entry shower, dual vanities & large walk-in closet. Two large guest bedrooms in front of the home can comfortably fit king-sized beds with room to spare and the private half-bath and spacious 10x23 screened porch are perfect for guests when entertaining. Don't miss the WALK-UP STORAGE located above the 2-car garage! This green-certified home has a tankless water heater, 2x6 exterior walls and other high-performance features making it ~34% more energy-efficient than a typical new home. There is also a NEMA 14-50 EV charging outlet for your electric vehicle. OTHER IMPROVEMENTS include louvered shutters throughout ($10k), tile flooring on screened porch, upgraded interior paint, additional wood flooring, updated kitchen hardware & pull-out shelving, additional landscaping, updated lighting fixtures & ceiling fans, extended appliance warranties through Jan 2028, and more! Encore is a 55+ resort-style community with included lawn maintenance and exclusive access to a Lifestyle Club with 5000sf clubhouse, well-equipped fitness center, tennis & pickleball courts, putting green, pool & hot tub, indoor/outdoor gathering spaces, meditation garden & gas firepits, meeting spaces, miles of scenic trails, and a lifestyle director coordinating year-round events & activities! The convenient location has easy access to US-64, 15-501 & I-540 and is just 4 min to world-class medical care, 5 min to coffee, retail, dining & entertainment, 7 min to new YMCA, 14 min to Jordan Lake & 33 min to RDU Airport. VIDEO TOUR: bit.ly/112Imagine-Video *Ask about available lender credit!
Listing Updated : 02-26-2026 at 10:15 PM EST
Home Details
112 Imagine Way, Pittsboro, NC 27312
Status
Active
MLS #ID
10145257
Price
$705,000
Bedrooms
3
Bathrooms
3
Square Footage
2,374
Acres
0.19
Year
2023
Days on Site
21
Property Type
Residential
Property Sub Type
Single-Family
Price per Sq Ft
$297
Date Listed
Feb 7, 2026
Community Information for 112 Imagine Way, Pittsboro, NC 27312
Address
112 Imagine Way
State
North Carolina
Zip Code 27312
County Chatham
Subdivision Chatham Park
Schools
Utilities
Sewer
Public Sewer
Water Source
Public
Interior
Interior Features
Bathtub/Shower Combination, Bookcases, Built-in Features, Ceiling Fan(s), Crown Molding, Double Vanity, Entrance Foyer, High Ceilings, High Speed Internet, Kitchen Island, Kitchen/Dining Room Combination, Living/Dining Room Combination, Open Floorplan, Pantry, Master Downstairs, Quartz Counters, Recessed Lighting, Smart Thermostat, Smooth Ceilings, Storage, Tray Ceiling(s), Walk-In Closet(s), Walk-In Shower and Water Closet
Appliances
Dishwasher, Disposal, Electric Oven, ENERGY STAR Qualified Appliances, Gas Cooktop, Gas Water Heater, Microwave, Plumbed For Ice Maker, Range Hood, Stainless Steel Appliance(s), Tankless Water Heater, Vented Exhaust Fan and Oven
Heating
Fireplace(s), Forced Air and Natural Gas
Cooling
Ceiling Fan(s), Central Air and Electric
Fireplace
Yes
# of Fireplaces
1
Exterior
Exterior
Garden and Rain Gutters
Roof
Shingle
Garage Spaces
2
Foundation
Slab
HOA
Has HOA
Yes
Services included
None
HOA fee
$265.05 Monthly
Additional Information
Styles
Craftsman and Ranch
Price per Sq Ft
$297
Builder Name
David Weekley
Listing Provided By

Peter Winkler, 919-360-1285, Keller Williams Elite Realty

Source

Triangle, MLS, MLS#: 10145257

Comments
Home Worth Check

Interested in 112 Imagine Way, Pittsboro NC, 27312?

By proceeding, you consent to receive calls, texts and voicemails at the number you provided (may be recorded and may be autodialed and use prerecorded and artificial voices), and email, from Raleigh Realty about your inquiry and other home-related matters. Msg/data rates may apply. This consent applies even if you are on a do not call list and is not a condition of any purchase.

Location of 112 Imagine Way, Pittsboro, NC 27312

Google Map
Mortgage Calculator
Listing Price
Down Payment
Interest Rate
This beautiful 3 beds 3 baths home is located at 112 Imagine Way, Pittsboro, NC 27312 and is listed for sale at $705,000.00. This home was built in 2023, contains 2374 square feet of living space, and sits on a 0.19 acre lot. This residential home is priced at $296.97 per square foot.

If you'd like to request a tour or more information on 112 Imagine Way, Pittsboro, NC 27312, please call us at 919​-249​-8536 so that we can assist you in your real estate search. To find homes like 112 Imagine Way, Pittsboro, NC 27312, you can search homes for sale in Pittsboro , or visit the neighborhood of Chatham Park , or by 27312 . We are here to help when you're ready to contact us!
Home Details
112 Imagine Way, Pittsboro, NC 27312
Status
Active
MLS #ID
10145257
Price
$705,000
Bedrooms
3
Bathrooms
3
Square Footage
2,374
Acres
0.19
Year
2023
Days on Site
21
Property Type
Residential
Property Sub Type
Single-Family
Price per Sq Ft
$297
Date Listed
Feb 7, 2026
Community Information for 112 Imagine Way, Pittsboro, NC 27312
Address
112 Imagine Way
State
North Carolina
Zip Code 27312
County Chatham
Subdivision Chatham Park
Schools
Utilities
Sewer
Public Sewer
Water Source
Public
Interior
Interior Features
Bathtub/Shower Combination, Bookcases, Built-in Features, Ceiling Fan(s), Crown Molding, Double Vanity, Entrance Foyer, High Ceilings, High Speed Internet, Kitchen Island, Kitchen/Dining Room Combination, Living/Dining Room Combination, Open Floorplan, Pantry, Master Downstairs, Quartz Counters, Recessed Lighting, Smart Thermostat, Smooth Ceilings, Storage, Tray Ceiling(s), Walk-In Closet(s) and Walk-In Shower
Appliances
Dishwasher, Disposal, Electric Oven, ENERGY STAR Qualified Appliances, Gas Cooktop, Gas Water Heater, Microwave, Plumbed For Ice Maker, Range Hood, Stainless Steel Appliance(s), Tankless Water Heater and Vented Exhaust Fan
Heating
Fireplace(s) and Forced Air
Cooling
Ceiling Fan(s) and Central Air
Fireplace
Yes
# of Fireplaces
1
Exterior
Exterior
Garden and Rain Gutters
Roof
Shingle
Garage Spaces
2
Foundation
Slab
HOA
Has HOA
Yes
Services included
None
HOA fee
$265.05 Monthly
Additional Information
Styles
Craftsman and Ranch
Price per Sq Ft
$297
Builder Name
David Weekley
Listing Provided By

Peter Winkler, 919-360-1285, Keller Williams Elite Realty

Source

Triangle, MLS, MLS#: 10145257

Comments

Homes Similar to 112 Imagine Way, Pittsboro, NC 27312

HomePittsboroChatham Park
What's your home worth?
Have a top local Realtor give you a FREE Comparative Market Analysis