Back to Search
146 Whistle Post Dr, Selma, NC 27576
146 Whistle Post Dr, Selma, NC 27576 3D Tour
146 Whistle Post Dr, Selma, NC 27576 Explore 3D Tour
146 Whistle Post Dr, Selma, NC 27576
146 Whistle Post Dr, Selma, NC 27576
146 Whistle Post Dr, Selma, NC 27576
146 Whistle Post Dr, Selma, NC 27576

146 Whistle Post Dr Selma, NC 27576

$465,000

ACTIVE
Beds
4
Baths
3
Sqft
2,849
Acres
1.78
Year
2021
Days on Site
27
Property Type
Residential
Sub Type
Single Family
Per Square Foot
$163
Date Listed
Jan 28, 2026

Description of 146 Whistle Post Dr, Selma, NC 27576

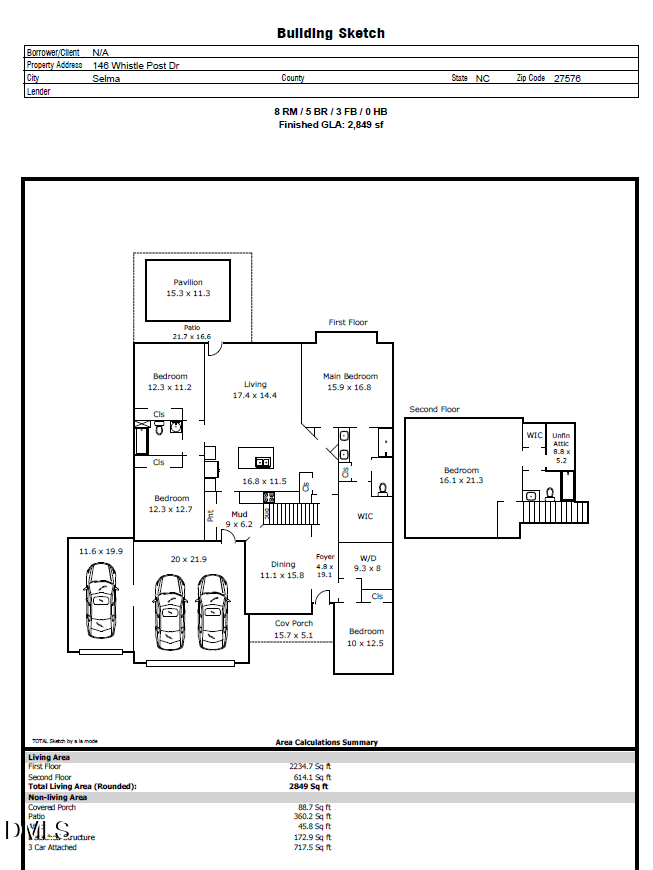
Listing details for 146 Whistle Post Dr, Selma, NC 27576 : Everything under one roof your heart desires! This hard-to-find ranch floor plan offers the space you need with 4 bedrooms on the main floor plus a spacious 3-car garage. Designed for effortless living, the welcoming foyer opens to a formal dining room, leading you into the heart of the home. The kitchen is a standout, featuring modern gray cabinets, granite countertops, and stainless steel appliances—and the refrigerator stays! The large island offers ample seating and flows seamlessly into the expansive living room. Staying organized is easy with a dedicated mudroom off the garage, a convenient pantry, and a separate laundry room for extra storage. Privacy is built into the layout: one guest bedroom sits near the front—making a quiet home office—while two additional guest bedrooms are tucked away in the rear. On the other rear corner, the primary suite is a true retreat with ample space for a king-sized furniture suite and a dedicated zen area. You'll love the primary bath, which features double vanities, a walk-in shower, and a large, practical walk-in closet. Upstairs, a versatile bonus room with a full tile bathroom and walk-in attic storage offers endless possibilities for a media room or guest suite. The outdoor space is the ultimate highlight! Enjoy a level, fenced backyard complete with a patio and a pavilion for shade—the ideal setup for your next backyard game competition. Location is everything here! You are less than 8 miles from booming Flowers Plantation and just 20 minutes from the small-town charm of Clayton. When spring hits, don't forget to mark your calendar for the famous Ham & Yam Festival in nearby Smithfield!
Listing Updated : 02-16-2026 at 12:00 PM EST
Home Details
146 Whistle Post Dr, Selma, NC 27576
Status
Active
MLS #ID
10143639
Price
$465,000
Bedrooms
4
Bathrooms
3
Square Footage
2,849
Acres
1.78
Year
2021
Days on Site
27
Property Type
Residential
Property Sub Type
Single-Family
Price per Sq Ft
$163
Date Listed
Jan 28, 2026
Community Information for 146 Whistle Post Dr, Selma, NC 27576
Address
146 Whistle Post Dr
State
North Carolina
Zip Code 27576
Schools
Utilities
Sewer
Septic Tank
Water Source
Public
Interior
Interior Features
Ceiling Fan(s), Double Vanity, Entrance Foyer, Granite Counters, Kitchen Island, Open Floorplan, Master Downstairs, Smooth Ceilings, Tray Ceiling(s), Walk-In Closet(s) and Walk-In Shower
Appliances
Dishwasher, Electric Range, Electric Water Heater and Microwave
Heating
Forced Air and Heat Pump
Cooling
Central Air and Heat Pump
Fireplace
No
Exterior
Exterior
Fenced Yard and Private Yard
Roof
Shingle
Garage Spaces
3
Foundation
Slab
HOA
Has HOA
Yes
Services included
None
HOA fee
$135 Quarterly
Additional Information
Styles
Traditional and Transitional
Price per Sq Ft
$163
Builder Name
Terramor Homes
Listing Provided By

Renee Hillman, 919-868-4383, EXP Realty LLC

Source

Triangle, MLS, MLS#: 10143639

Comments
Home Worth Check

Interested in 146 Whistle Post Dr, Selma NC, 27576?

By proceeding, you consent to receive calls, texts and voicemails at the number you provided (may be recorded and may be autodialed and use prerecorded and artificial voices), and email, from Raleigh Realty about your inquiry and other home-related matters. Msg/data rates may apply. This consent applies even if you are on a do not call list and is not a condition of any purchase.

Location of 146 Whistle Post Dr, Selma, NC 27576

Google Map
Mortgage Calculator
Listing Price
Down Payment
Interest Rate
This beautiful 4 beds 3 baths home is located at 146 Whistle Post Dr, Selma, NC 27576 and is listed for sale at $465,000.00. This home was built in 2021, contains 2849 square feet of living space, and sits on a 1.78 acre lot. This residential home is priced at $163.22 per square foot.

If you'd like to request a tour or more information on 146 Whistle Post Dr, Selma, NC 27576, please call us at 919​-249​-8536 so that we can assist you in your real estate search. To find homes like 146 Whistle Post Dr, Selma, NC 27576, you can search homes for sale in Selma , or visit the neighborhood of Collins Station , or by 27576 . We are here to help when you're ready to contact us!
Home Details
146 Whistle Post Dr, Selma, NC 27576
Status
Active
MLS #ID
10143639
Price
$465,000
Bedrooms
4
Bathrooms
3
Square Footage
2,849
Acres
1.78
Year
2021
Days on Site
27
Property Type
Residential
Property Sub Type
Single-Family
Price per Sq Ft
$163
Date Listed
Jan 28, 2026
Community Information for 146 Whistle Post Dr, Selma, NC 27576
Address
146 Whistle Post Dr
State
North Carolina
Zip Code 27576
Schools
Utilities
Sewer
Septic Tank
Water Source
Public
Interior
Interior Features
Ceiling Fan(s), Double Vanity, Entrance Foyer, Granite Counters, Kitchen Island, Open Floorplan, Master Downstairs, Smooth Ceilings, Tray Ceiling(s) and Walk-In Closet(s)
Appliances
Dishwasher, Electric Range and Electric Water Heater
Heating
Forced Air and Heat Pump
Cooling
Central Air and Heat Pump
Fireplace
No
Exterior
Exterior
Fenced Yard and Private Yard
Roof
Shingle
Garage Spaces
3
Foundation
Slab
HOA
Has HOA
Yes
Services included
None
HOA fee
$135 Quarterly
Additional Information
Styles
Traditional and Transitional
Price per Sq Ft
$163
Builder Name
Terramor Homes
Listing Provided By

Renee Hillman, 919-868-4383, EXP Realty LLC

Source

Triangle, MLS, MLS#: 10143639

Comments
HomeSelma
What's your home worth?
Have a top local Realtor give you a FREE Comparative Market Analysis