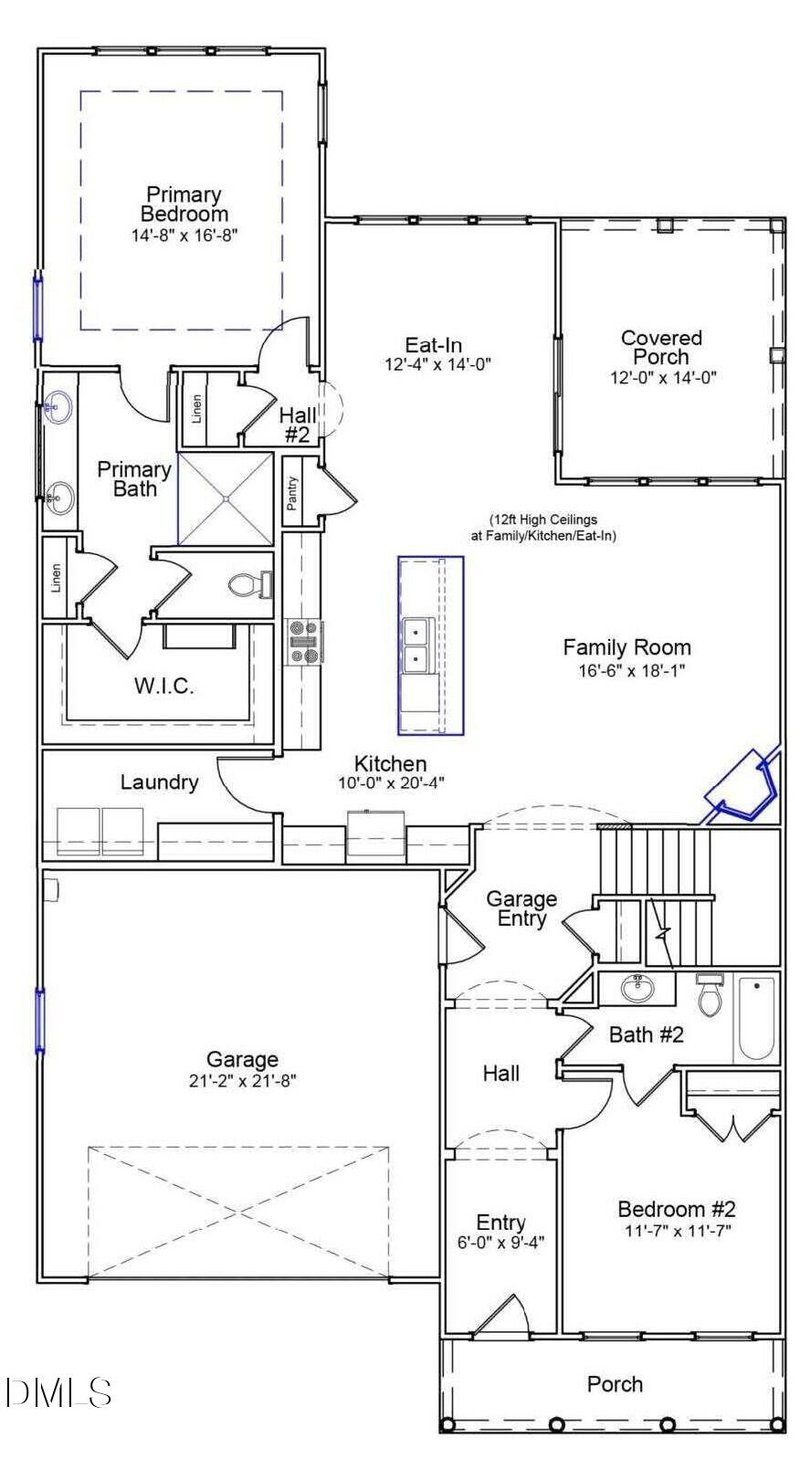
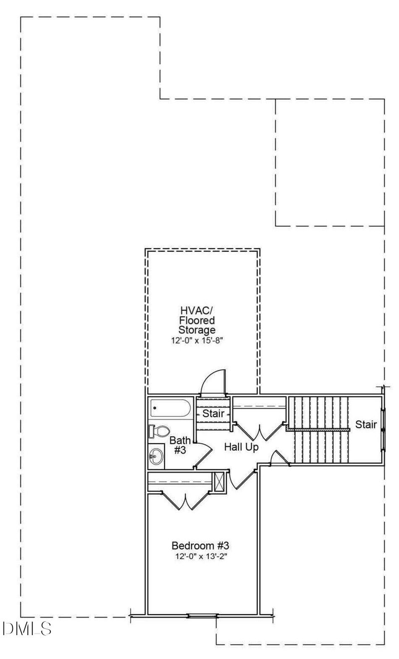
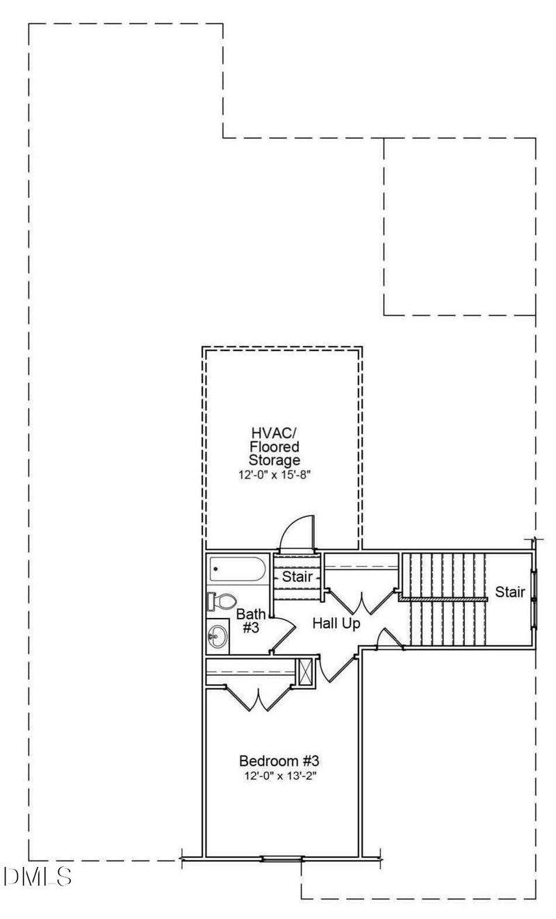
New - 30 Mins Ago
$430,468
Active
5
Beds
3
Baths
2900
Sqft
0.19
Acres
161 Sugarmaple Way, Youngsville, NC 27596
MLS#: 10149642






$448,943
ACTIVEJim Allen, 919-645-2114, Coldwell Banker HPW
Triangle, MLS, MLS#: 10149619


Jim Allen, 919-645-2114, Coldwell Banker HPW
Triangle, MLS, MLS#: 10149619
