New - 5 Days Ago
$1,505,210
Active
5
Beds
6
Baths
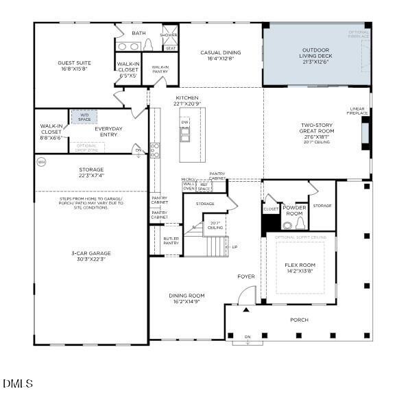
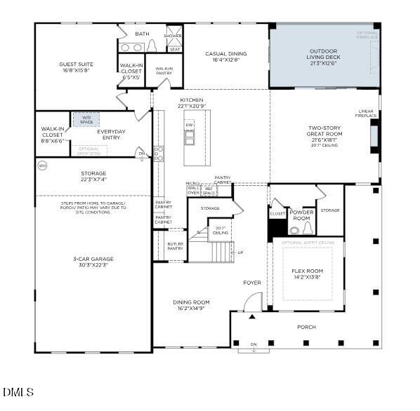
5200
Sqft
1.5
Acres
67 Chapel Oaks Ln, Chapel Hill, NC 27517
MLS#: 10144911




$1,498,176
PENDINGMonica Meinken, 919-337-5038, Toll Brothers, Inc.
Triangle, MLS, MLS#: 10142323


Monica Meinken, 919-337-5038, Toll Brothers, Inc.
Triangle, MLS, MLS#: 10142323
