Back to Search
2910 Thoreau Dr, Durham, NC 27703
2910 Thoreau Dr, Durham, NC 27703 3D Tour
2910 Thoreau Dr, Durham, NC 27703 Explore 3D Tour
2910 Thoreau Dr, Durham, NC 27703
2910 Thoreau Dr, Durham, NC 27703
2910 Thoreau Dr, Durham, NC 27703
2910 Thoreau Dr, Durham, NC 27703

2910 Thoreau Dr Durham, NC 27703

1Views
0Saves

$465,000

PENDING
Beds
4
Baths
3
Sqft
2,757
Acres
0.17
Year
2004
Days on Site
104
Property Type
Residential
Sub Type
Single Family
Per Square Foot
$169
Date Listed
Oct 13, 2025

Description of 2910 Thoreau Dr, Durham, NC 27703

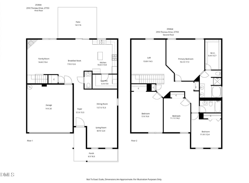
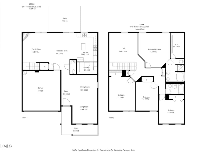
Listing details for 2910 Thoreau Dr, Durham, NC 27703 : This flexible floor plan includes 4 bedrooms and 2.5 baths, offering formal living and dining rooms, a welcoming family room with a gas fireplace, and a bright breakfast nook. The upstairs loft adds even more versatility-perfect for a home office, media room, or play space. The entire interior has been professionally painted, and the main level features attractive laminate flooring. Upstairs, you'll find brand-new carpet, along with new LVTile flooring in the kitchen and laundry room, and updated light fixtures that bring a clean, modern feel. Major improvements, including a newer roof (2024), newer upstairs HVAC (2022), and upgraded black stainless-steel appliances: a brand-new gas range, brand-new microwave, and newer French door refrigerator. Step outside to a fully fenced backyard with a beautiful wooded backdrop. This serene outdoor retreat offers both privacy and scenery, complete with an oversized patio ideal for relaxing or entertaining. A transferable home warranty adds even more value. Neighborhood amenities feature a gazebo, playset, and open spaces for recreation. Conveniently located near RTP, RDU, Brier Creek, shopping, and dining, this home blends comfort, style, and an unbeatable location.
Listing Updated : 12-27-2025 at 08:00 PM EST
Home Details
2910 Thoreau Dr, Durham, NC 27703
Status
Pending
MLS #ID
10127476
Price
$465,000
Bedrooms
4
Bathrooms
3
Square Footage
2,757
Acres
0.17
Year
2004
Days on Site
104
Property Type
Residential
Property Sub Type
Single-Family
Price per Sq Ft
$169
Date Listed
Oct 13, 2025
Community Information for 2910 Thoreau Dr, Durham, NC 27703
Address
2910 Thoreau Dr
State
North Carolina
Zip Code 27703
County Durham
Subdivision Bradbury
Schools
Elementary Bethesda
Middle Neal
Utilities
Sewer
Public Sewer
Water Source
Public
Interior
Interior Features
Bathtub/Shower Combination, Ceiling Fan(s), Chandelier, Crown Molding, Kitchen Island, Living/Dining Room Combination, Open Floorplan, Soaking Tub and Walk-In Closet(s)
Appliances
Dishwasher, Dryer, Free-Standing Gas Range, Microwave, Refrigerator and Washer
Heating
Forced Air
Cooling
Central Air
Fireplace
Yes
# of Fireplaces
1
Exterior
Exterior
Fenced Yard
Roof
Shingle
Garage Spaces
2
Foundation
Slab
HOA
Has HOA
Yes
Services included
None
HOA fee
$300 Annually
Additional Information
Styles
Traditional
Price per Sq Ft
$169
Listed By

Jenniffer Welch, 919-649-7831, RE/MAX United

Source

Triangle, MLS, MLS#: 10127476

Comments
Home Worth Check

Interested in 2910 Thoreau Dr, Durham NC, 27703?

By proceeding, you consent to receive calls, texts and voicemails at the number you provided (may be recorded and may be autodialed and use prerecorded and artificial voices), and email, from Raleigh Realty about your inquiry and other home-related matters. Msg/data rates may apply. This consent applies even if you are on a do not call list and is not a condition of any purchase.

Location of 2910 Thoreau Dr, Durham, NC 27703

Google Map
Mortgage Calculator
Listing Price
Down Payment
Interest Rate
This beautiful 4 beds 3 baths home is located at 2910 Thoreau Dr, Durham, NC 27703 and is listed for sale at $465,000.00. This home was built in 2004, contains 2757 square feet of living space, and sits on a 0.17 acre lot. This residential home is priced at $168.66 per square foot.

If you'd like to request a tour or more information on 2910 Thoreau Dr, Durham, NC 27703, please call us at 919​-249​-8536 so that we can assist you in your real estate search. To find homes like 2910 Thoreau Dr, Durham, NC 27703, you can search homes for sale in Durham , or visit the neighborhood of Bradbury , or by 27703 . We are here to help when you're ready to contact us!

Schools Near 2910 Thoreau Dr, Durham, NC 27703

Home Details
2910 Thoreau Dr, Durham, NC 27703
Status
Pending
MLS #ID
10127476
Price
$465,000
Bedrooms
4
Bathrooms
3
Square Footage
2,757
Acres
0.17
Year
2004
Days on Site
104
Property Type
Residential
Property Sub Type
Single-Family
Price per Sq Ft
$169
Date Listed
Oct 13, 2025
Community Information for 2910 Thoreau Dr, Durham, NC 27703
Address
2910 Thoreau Dr
State
North Carolina
Zip Code 27703
County Durham
Subdivision Bradbury
Schools
Elementary Bethesda
Middle Neal
Utilities
Sewer
Public Sewer
Water Source
Public
Interior
Interior Features
Bathtub/Shower Combination, Ceiling Fan(s), Chandelier, Crown Molding, Kitchen Island, Living/Dining Room Combination, Open Floorplan and Soaking Tub
Appliances
Dishwasher, Dryer, Free-Standing Gas Range, Microwave and Refrigerator
Heating
Forced Air
Cooling
Central Air
Fireplace
Yes
# of Fireplaces
1
Exterior
Exterior
Fenced Yard
Roof
Shingle
Garage Spaces
2
Foundation
Slab
HOA
Has HOA
Yes
Services included
None
HOA fee
$300 Annually
Additional Information
Styles
Traditional
Price per Sq Ft
$169
Listed By

Jenniffer Welch, 919-649-7831, RE/MAX United

Source

Triangle, MLS, MLS#: 10127476

Comments

Homes Similar to 2910 Thoreau Dr, Durham, NC 27703

Related Blogs
Related Videos
HomeDurhamBradbury
What's your home worth?
Have a top local Realtor give you a FREE Comparative Market Analysis