Back to Search
423 Eugene St, Durham, NC 27701
423 Eugene St, Durham, NC 27701 3D Tour
423 Eugene St, Durham, NC 27701 Explore 3D Tour
423 Eugene St, Durham, NC 27701
423 Eugene St, Durham, NC 27701
423 Eugene St, Durham, NC 27701
423 Eugene St, Durham, NC 27701

423 Eugene St Durham, NC 27701

$309,900

ACTIVE
Beds
3
Baths
3
Sqft
1,222
Acres
0.07
Year
2022
Days on Site
1
Property Type
Residential
Sub Type
Single Family
Per Square Foot
$254
Date Listed
Feb 16, 2026

Description of 423 Eugene St, Durham, NC 27701

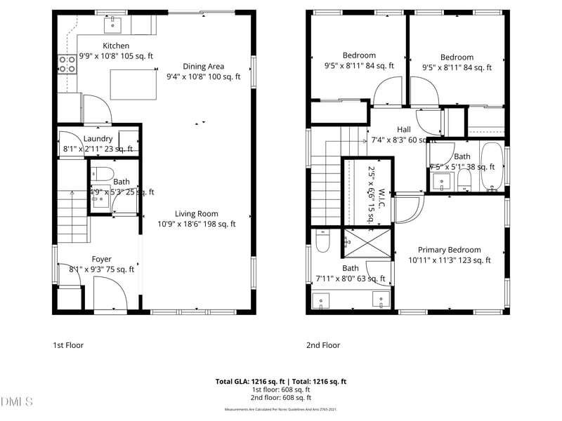
Listing details for 423 Eugene St, Durham, NC 27701 : Arguably one of the best values under $325,000 near Downtown Durham, 423 Eugene Street delivers modern construction, quality finishes, and prime 27701 location at a price point that's becoming increasingly rare. Built in 2022 and just minutes from Downtown Durham, NCCU, Duke University, Duke Hospital, and Research Triangle Park (RTP), this home offers the convenience and lifestyle today's buyers are searching for. Enjoy quick access to I-40, DPAC, the American Tobacco Campus, Durham Bulls Athletic Park, and the restaurants, breweries, and energy that define Durham living. Inside, the open-concept design is filled with natural light and chefs dream kitchen featuring quartz countertops, stainless steel appliances, subway tile backsplash, sleek cabinetry, and a spacious center island. Durable luxury vinyl plank flooring runs throughout, creating a clean, modern aesthetic that's both stylish and low maintenance. Upstairs, comfortable bedrooms and a thoughtfully designed primary suite provide functional everyday living, while the wooded backdrop offers a surprising sense of privacy this close to the city center. For owner-occupants seeking newer construction without stretching into higher price brackets, or investors targeting a strong rental corridor near Downtown Durham and NCCU, this property checks the boxes. With major systems only a few years old, the benefits of newer construction mean lower maintenance and long-term appeal. Modern build. Prime Durham location. Competitive price. Opportunities like this in 27701 don't come around often. WELCOME HOME!
Listing Updated : 02-25-2026 at 03:00 PM EST
Home Details
423 Eugene St, Durham, NC 27701
Status
Active
MLS #ID
10146844
Price
$309,900
Bedrooms
3
Bathrooms
3
Square Footage
1,222
Acres
0.07
Year
2022
Days on Site
1
Property Type
Residential
Property Sub Type
Single-Family
Price per Sq Ft
$254
Date Listed
Feb 16, 2026
Community Information for 423 Eugene St, Durham, NC 27701
Address
423 Eugene St
State
North Carolina
Zip Code 27701
County Durham
Schools
Utilities
Sewer
Public Sewer
Water Source
Public
Interior
Interior Features
Bathtub/Shower Combination, Ceiling Fan(s), Entrance Foyer, High Speed Internet, Kitchen Island, Kitchen/Dining Room Combination, Open Floorplan, Pantry, Quartz Counters, Smooth Ceilings, Storage, Walk-In Closet(s), Walk-In Shower and Wired for Data
Appliances
Convection Oven, Dishwasher, Dryer, Electric Water Heater, Gas Cooktop, Gas Range, Ice Maker, Range Hood, Refrigerator and Washer
Heating
Central
Cooling
Central Air
Fireplace
No
Exterior
Roof
Shingle
Foundation
Slab
HOA
Has HOA
None
Additional Information
Styles
Modern
Price per Sq Ft
$254
Listing Provided By

Matt Perry, 919-789-1635, Keller Williams Elite Realty

Source

Triangle, MLS, MLS#: 10146844

Comments
Home Worth Check

Interested in 423 Eugene St, Durham NC, 27701?

By proceeding, you consent to receive calls, texts and voicemails at the number you provided (may be recorded and may be autodialed and use prerecorded and artificial voices), and email, from Raleigh Realty about your inquiry and other home-related matters. Msg/data rates may apply. This consent applies even if you are on a do not call list and is not a condition of any purchase.

Location of 423 Eugene St, Durham, NC 27701

Google Map
Mortgage Calculator
Listing Price
Down Payment
Interest Rate
This beautiful 3 beds 3 baths home is located at 423 Eugene St, Durham, NC 27701 and is listed for sale at $309,900.00. This home was built in 2022, contains 1222 square feet of living space, and sits on a 0.07 acre lot. This residential home is priced at $253.60 per square foot.

If you'd like to request a tour or more information on 423 Eugene St, Durham, NC 27701, please call us at 919​-249​-8536 so that we can assist you in your real estate search. To find homes like 423 Eugene St, Durham, NC 27701, you can search homes for sale in Durham , or visit the neighborhood of Not In A Subdivision , or by 27701 . We are here to help when you're ready to contact us!
Home Details
423 Eugene St, Durham, NC 27701
Status
Active
MLS #ID
10146844
Price
$309,900
Bedrooms
3
Bathrooms
3
Square Footage
1,222
Acres
0.07
Year
2022
Days on Site
1
Property Type
Residential
Property Sub Type
Single-Family
Price per Sq Ft
$254
Date Listed
Feb 16, 2026
Community Information for 423 Eugene St, Durham, NC 27701
Address
423 Eugene St
State
North Carolina
Zip Code 27701
County Durham
Schools
Utilities
Sewer
Public Sewer
Water Source
Public
Interior
Interior Features
Bathtub/Shower Combination, Ceiling Fan(s), Entrance Foyer, High Speed Internet, Kitchen Island, Kitchen/Dining Room Combination, Open Floorplan, Pantry, Quartz Counters, Smooth Ceilings, Storage, Walk-In Closet(s) and Walk-In Shower
Appliances
Convection Oven, Dishwasher, Dryer, Electric Water Heater, Gas Cooktop, Gas Range, Ice Maker, Range Hood and Refrigerator
Heating
Central
Cooling
Central Air
Fireplace
No
Exterior
Roof
Shingle
Foundation
Slab
HOA
Has HOA
None
Additional Information
Styles
Modern
Price per Sq Ft
$254
Listing Provided By

Matt Perry, 919-789-1635, Keller Williams Elite Realty

Source

Triangle, MLS, MLS#: 10146844

Comments

Homes Similar to 423 Eugene St, Durham, NC 27701

Related Videos
HomeDurhamNot In A Subdivision
What's your home worth?
Have a top local Realtor give you a FREE Comparative Market Analysis