Back to Search
1510 Roxboro St, Durham, NC 27707
1510 Roxboro St, Durham, NC 27707
1510 Roxboro St, Durham, NC 27707
1510 Roxboro St, Durham, NC 27707
1510 Roxboro St, Durham, NC 27707
1510 Roxboro St, Durham, NC 27707
1510 Roxboro St, Durham, NC 27707

1510 Roxboro St Durham, NC 27707

$549,000

ACTIVE
Beds
3
Baths
3
Sqft
1,885
Acres
0.15
Year
2018
Days on Site
1
Property Type
Residential
Sub Type
Single Family
Per Square Foot
$291
Date Listed
Mar 13, 2026

Description of 1510 Roxboro St, Durham, NC 27707

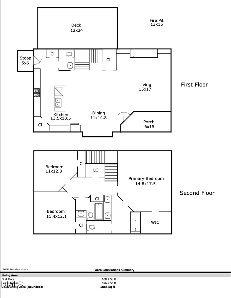
Listing details for 1510 Roxboro St, Durham, NC 27707 : Tucked into Durham's vibrant Southside neighborhood, this modern farmhouse offers the perfect blend of style, comfort, and location--just minutes from Durham Bulls Stadium, downtown Durham, RTP, and Duke. If you love to entertain, this home delivers. The expansive open floor plan brings the kitchen, dining, and living areas together into one inviting space, with a large island that serves as the heart of the home--perfect for cooking, gathering, and making memories with friends and family. The kitchen is a standout, with dramatic granite countertops and a custom pantry, while the living room features a shiplap accent wall, cozy fireplace, and built-ins that create a warm and inviting focal point. Upstairs, the generously sized primary suite provides a peaceful retreat, with two additional bedrooms and conveniently located laundry completing the second floor. Step outside and the lifestyle continues. A brand-new deck overlooks the fully sodded, fenced backyard--perfect for morning coffee, evening dinners, or gathering around the fire pit with friends. Newly planted evergreens will grow in over time, creating a lush natural privacy screen and an even more serene backyard escape.
Listing Updated : 03-13-2026 at 12:00 PM EDT

Open Houses

14
Sat, March
1:00 PM - 3:00 PM
15
Sun, March
1:00 PM - 3:00 PM
Home Details
1510 Roxboro St, Durham, NC 27707
Status
Active
MLS #ID
10152550
Price
$549,000
Bedrooms
3
Bathrooms
3
Square Footage
1,885
Acres
0.15
Year
2018
Days on Site
1
Property Type
Residential
Property Sub Type
Single-Family
Price per Sq Ft
$291
Date Listed
Mar 13, 2026
Community Information for 1510 Roxboro St, Durham, NC 27707
Address
1510 Roxboro St
State
North Carolina
Zip Code 27707
County Durham
Schools
Elementary Spaulding
Middle Githens
Utilities
Sewer
Public Sewer
Water Source
Public
Interior
Interior Features
Bookcases, Built-in Features, Ceiling Fan(s), Crown Molding, Double Vanity, Granite Counters, High Ceilings, Kitchen Island, Open Floorplan, Smooth Ceilings, Walk-In Closet(s) and Walk-In Shower
Appliances
Dishwasher, Disposal, Free-Standing Refrigerator, Gas Oven, Gas Range, Microwave, Washer, Washer/Dryer and Water Heater
Heating
Central
Cooling
Central Air
Fireplace
No
Exterior
Exterior
Fenced Yard
Roof
Shingle
Foundation
Block
HOA
Has HOA
None
Additional Information
Styles
Farmhouse
Price per Sq Ft
$291
Builder Name
Durham Building Company
Listing Provided By

Courtney Dunstan, 919-920-1104, Nest Realty of the Triangle

Source

Triangle, MLS, MLS#: 10152550

Comments
Home Worth Check

Interested in 1510 Roxboro St, Durham NC, 27707?

By proceeding, you consent to receive calls, texts and voicemails at the number you provided (may be recorded and may be autodialed and use prerecorded and artificial voices), and email, from Raleigh Realty about your inquiry and other home-related matters. Msg/data rates may apply. This consent applies even if you are on a do not call list and is not a condition of any purchase.

Location of 1510 Roxboro St, Durham, NC 27707

Google Map
Mortgage Calculator
Listing Price
Down Payment
Interest Rate
This beautiful 3 beds 3 baths home is located at 1510 Roxboro St, Durham, NC 27707 and is listed for sale at $549,000.00. This home was built in 2018, contains 1885 square feet of living space, and sits on a 0.15 acre lot. This residential home is priced at $291.25 per square foot.

If you'd like to request a tour or more information on 1510 Roxboro St, Durham, NC 27707, please call us at 919​-249​-8536 so that we can assist you in your real estate search. To find homes like 1510 Roxboro St, Durham, NC 27707, you can search homes for sale in Durham , or visit the neighborhood of Not In A Subdivision , or by 27707 . We are here to help when you're ready to contact us!
Home Details
1510 Roxboro St, Durham, NC 27707
Status
Active
MLS #ID
10152550
Price
$549,000
Bedrooms
3
Bathrooms
3
Square Footage
1,885
Acres
0.15
Year
2018
Days on Site
1
Property Type
Residential
Property Sub Type
Single-Family
Price per Sq Ft
$291
Date Listed
Mar 13, 2026
Community Information for 1510 Roxboro St, Durham, NC 27707
Address
1510 Roxboro St
State
North Carolina
Zip Code 27707
County Durham
Schools
Elementary Spaulding
Middle Githens
Utilities
Sewer
Public Sewer
Water Source
Public
Interior
Interior Features
Bookcases, Built-in Features, Ceiling Fan(s), Crown Molding, Double Vanity, Granite Counters, High Ceilings, Kitchen Island, Open Floorplan, Smooth Ceilings and Walk-In Closet(s)
Appliances
Dishwasher, Disposal, Free-Standing Refrigerator, Gas Oven, Gas Range, Microwave, Washer and Washer/Dryer
Heating
Central
Cooling
Central Air
Fireplace
No
Exterior
Exterior
Fenced Yard
Roof
Shingle
Foundation
Block
HOA
Has HOA
None
Additional Information
Styles
Farmhouse
Price per Sq Ft
$291
Builder Name
Durham Building Company
Listing Provided By

Courtney Dunstan, 919-920-1104, Nest Realty of the Triangle

Source

Triangle, MLS, MLS#: 10152550

Comments

Homes Similar to 1510 Roxboro St, Durham, NC 27707

Related Videos
HomeDurhamNot In A Subdivision
What's your home worth?
Have a top local Realtor give you a FREE Comparative Market Analysis