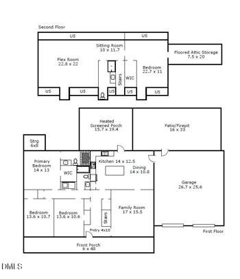
New - 2 Days Ago > $240,000 Active 3Beds2Baths1249Sqft--Acres 407 Green Spring Dr, Sanford, NC 27332 MLS#: LP752249