Back to Search
825 Golden Plum Ln, Zebulon, NC 27597
825 Golden Plum Ln, Zebulon, NC 27597 3D Tour
825 Golden Plum Ln, Zebulon, NC 27597 Explore 3D Tour
825 Golden Plum Ln, Zebulon, NC 27597
825 Golden Plum Ln, Zebulon, NC 27597
825 Golden Plum Ln, Zebulon, NC 27597
825 Golden Plum Ln, Zebulon, NC 27597

825 Golden Plum Ln Zebulon, NC 27597

$385,000

ACTIVE
Beds
4
Baths
3
Sqft
2,168
Acres
0.17
Year
2023
Days on Site
21
Property Type
Residential
Sub Type
Single Family
Per Square Foot
$178
Date Listed
Feb 17, 2026

Description of 825 Golden Plum Ln, Zebulon, NC 27597

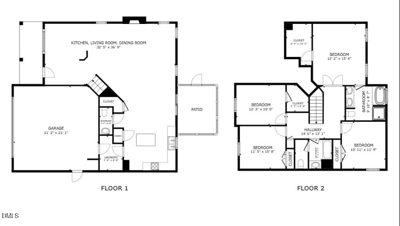
Listing details for 825 Golden Plum Ln, Zebulon, NC 27597 : Welcome to your energy smart oasis in the heart of Weavers Pond. Beautifully maintained, energy efficient home with solar panels that delivers amazingly low utility costs without sacrificing comfort or style. Thoughtfully designed and perfectly sited on a premium wooded lot, this 4 bedroom, 2.5 bath residence offers peace and space for everyday living and entertaining. Step inside to discover a bright, open floor plan anchored by a stunning kitchen with center island, ideal for casual dining and gatherings. The kitchen features stainless appliances, a gas stove and flows seamlessly into the spacious family room where a stunning fireplace creates a warm and welcoming focal point. Natural light pours through every room, highlighting the easy connection between indoor and outdoor living. A lovely screened porch invites morning coffee and evening relaxation while the enlarged patio is ideal for a barbeque. Practical spaces shine as much as the living areas: there's a dedicated laundry room, 2-car garage with pedestrian door and pet door and generous closet space. As part of the Weavers Pond community, you'll enjoy fantastic amenities including a pool, clubhouse, playground, walking trails and more - perfect for families, active lifestyles and social connection. Don't miss your chance to own a home that blends comfort, sustainability and community in one exceptional package! Transferrable warranty available for solar panels.
Listing Updated : 02-27-2026 at 1:15 PM EST
Home Details
825 Golden Plum Ln, Zebulon, NC 27597
Status
Active
MLS #ID
10147028
Price
$385,000
Bedrooms
4
Bathrooms
3
Square Footage
2,168
Acres
0.17
Year
2023
Days on Site
21
Property Type
Residential
Property Sub Type
Single-Family
Price per Sq Ft
$178
Date Listed
Feb 17, 2026
Community Information for 825 Golden Plum Ln, Zebulon, NC 27597
Address
825 Golden Plum Ln
State
North Carolina
Zip Code 27597
County Wake
Subdivision Weavers Pond
Schools
Elementary Wakelon
Middle Zebulon
Utilities
Sewer
Public Sewer
Water Source
Public
Interior
Interior Features
Built-in Features, Double Vanity, Eat-in Kitchen, Granite Counters, Kitchen Island, Pantry, Recessed Lighting, Separate Shower, Soaking Tub and Walk-In Closet(s)
Appliances
Dishwasher, Disposal, Gas Range, Microwave and Stainless Steel Appliance(s)
Heating
Central, Fireplace(s), Forced Air and Solar
Cooling
Central Air and Electric
Fireplace
No
Exterior
Exterior
Rain Gutters
Roof
Shingle
Garage Spaces
2
Foundation
Slab
HOA
Has HOA
Yes
Services included
None
HOA fee
$350 Semi-Annually
Additional Information
Styles
Transitional
Price per Sq Ft
$178
Listing Provided By

Don Gomez, 919-972-8448, C-A-RE Realty

Source

Triangle, MLS, MLS#: 10147028

Comments
Home Worth Check

Interested in 825 Golden Plum Ln, Zebulon NC, 27597?

By proceeding, you consent to receive calls, texts and voicemails at the number you provided (may be recorded and may be autodialed and use prerecorded and artificial voices), and email, from Raleigh Realty about your inquiry and other home-related matters. Msg/data rates may apply. This consent applies even if you are on a do not call list and is not a condition of any purchase.

Location of 825 Golden Plum Ln, Zebulon, NC 27597

Google Map
Mortgage Calculator
Listing Price
Down Payment
Interest Rate
This beautiful 4 beds 3 baths home is located at 825 Golden Plum Ln, Zebulon, NC 27597 and is listed for sale at $385,000.00. This home was built in 2023, contains 2168 square feet of living space, and sits on a 0.17 acre lot. This residential home is priced at $177.58 per square foot.

If you'd like to request a tour or more information on 825 Golden Plum Ln, Zebulon, NC 27597, please call us at 919​-249​-8536 so that we can assist you in your real estate search. To find homes like 825 Golden Plum Ln, Zebulon, NC 27597, you can search homes for sale in Zebulon , or visit the neighborhood of Weavers Pond , or by 27597 . We are here to help when you're ready to contact us!
Home Details
825 Golden Plum Ln, Zebulon, NC 27597
Status
Active
MLS #ID
10147028
Price
$385,000
Bedrooms
4
Bathrooms
3
Square Footage
2,168
Acres
0.17
Year
2023
Days on Site
21
Property Type
Residential
Property Sub Type
Single-Family
Price per Sq Ft
$178
Date Listed
Feb 17, 2026
Community Information for 825 Golden Plum Ln, Zebulon, NC 27597
Address
825 Golden Plum Ln
State
North Carolina
Zip Code 27597
County Wake
Subdivision Weavers Pond
Schools
Elementary Wakelon
Middle Zebulon
Utilities
Sewer
Public Sewer
Water Source
Public
Interior
Interior Features
Built-in Features, Double Vanity, Eat-in Kitchen, Granite Counters, Kitchen Island, Pantry, Recessed Lighting, Separate Shower and Soaking Tub
Appliances
Dishwasher, Disposal, Gas Range and Microwave
Heating
Central, Fireplace(s) and Forced Air
Cooling
Central Air and Electric
Fireplace
No
Exterior
Exterior
Rain Gutters
Roof
Shingle
Garage Spaces
2
Foundation
Slab
HOA
Has HOA
Yes
Services included
None
HOA fee
$350 Semi-Annually
Additional Information
Styles
Transitional
Price per Sq Ft
$178
Listing Provided By

Don Gomez, 919-972-8448, C-A-RE Realty

Source

Triangle, MLS, MLS#: 10147028

Comments

Homes Similar to 825 Golden Plum Ln, Zebulon, NC 27597

HomeZebulonWeavers Pond
What's your home worth?
Have a top local Realtor give you a FREE Comparative Market Analysis