Open: Sat 1:00 PM - 3:00 PM
$675,000
Active
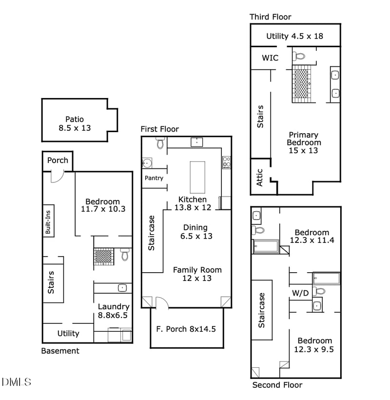
4
Beds
5
Baths
2313
Sqft
0.08
Acres
2938 Chapel Hill Rd #A, Durham, NC 27707
MLS#: 10150374
$650,000
ACTIVERoy Ellis, 910-818-6334, Compass -- Chapel Hill - Durham
Triangle, MLS, MLS#: 10150609


Roy Ellis, 910-818-6334, Compass -- Chapel Hill - Durham
Triangle, MLS, MLS#: 10150609
