Back to Search
4125 Farrington Rd, Durham, NC 27707
4125 Farrington Rd, Durham, NC 27707
4125 Farrington Rd, Durham, NC 27707
4125 Farrington Rd, Durham, NC 27707
4125 Farrington Rd, Durham, NC 27707
4125 Farrington Rd, Durham, NC 27707
4125 Farrington Rd, Durham, NC 27707

4125 Farrington Rd Durham, NC 27707

0Views
0Saves

$1,450,000

ACTIVE
Beds
5
Baths
4
Sqft
4,426
Acres
2.05
Year
1900
Days on Site
62
Property Type
Residential
Sub Type
Single Family
Per Square Foot
$328
Date Listed
Nov 25, 2025

Description of 4125 Farrington Rd, Durham, NC 27707

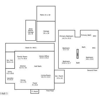
Listing details for 4125 Farrington Rd, Durham, NC 27707 : Discover exceptional comfort, flexibility, and income-producing potential in this expansive 5-bedroom, 4-bathroom Durham property. Offering 4,426 square feet of well-designed living space, this home is currently operating as a short-term rental, and furnishings will convey. A private upstairs apartment with its own separate entrance provides an excellent option for added privacy or independent living arrangements. Multiple living areas, fireplaces, heated flooring, vaulted ceilings, skylights, and inviting gathering spaces contribute to the home's appealing layout. The kitchen offers abundant storage and generous counter space, while several flexible rooms accommodate work, hobbies, or wellness needs. Both levels include oversized bedrooms and adaptable sleeping areas. Interior highlights also include a formal dining room and heated floors throughout key spaces. Outdoor living features a spacious wraparound deck that overlooks a large yard, along with a seasonal pool, hot tub, fire pit, and multiple areas for seating and dining. Additional features include central air, smart-home elements, ample storage, and a washer and dryer. A garage with an EV charger, a large driveway, and additional parking suitable for various vehicles add valuable convenience. Seller Financing Available.
Listing Updated : 01-05-2026 at 12:00 AM EST
Home Details
4125 Farrington Rd, Durham, NC 27707
Status
Active
MLS #ID
10134820
Price
$1,450,000
Bedrooms
5
Bathrooms
4
Square Footage
4,426
Acres
2.05
Year
1900
Days on Site
62
Property Type
Residential
Property Sub Type
Single-Family
Price per Sq Ft
$328
Date Listed
Nov 25, 2025
Community Information for 4125 Farrington Rd, Durham, NC 27707
Address
4125 Farrington Rd
State
North Carolina
Zip Code 27707
County Durham
Schools
Elementary Creekside
Middle Githens
Utilities
Sewer
Public Sewer
Water Source
Public
Interior
Interior Features
Bathtub/Shower Combination, Ceiling Fan(s), Smooth Ceilings, Vaulted Ceiling(s), Walk-In Closet(s) and Walk-In Shower
Appliances
Dishwasher, Disposal, Gas Range, Ice Maker, Microwave, Refrigerator, Self Cleaning Oven and Oven
Heating
Fireplace(s) and Forced Air
Cooling
Central Air, Dual and Zoned
Fireplace
Yes
# of Fireplaces
2
Exterior
Exterior
Rain Gutters and Storage
Roof
Shingle
Garage Spaces
2
Foundation
HOA
Has HOA
None
Additional Information
Styles
Transitional
Price per Sq Ft
$328
Listed By

Favio Ruiz, 704-281-8526, DASH Carolina

Source

Triangle, MLS, MLS#: 10134820

Comments
Home Worth Check

Interested in 4125 Farrington Rd, Durham NC, 27707?

By proceeding, you consent to receive calls, texts and voicemails at the number you provided (may be recorded and may be autodialed and use prerecorded and artificial voices), and email, from Raleigh Realty about your inquiry and other home-related matters. Msg/data rates may apply. This consent applies even if you are on a do not call list and is not a condition of any purchase.

Location of 4125 Farrington Rd, Durham, NC 27707

Google Map
Mortgage Calculator
Listing Price
Down Payment
Interest Rate
This beautiful 5 beds 4 baths home is located at 4125 Farrington Rd, Durham, NC 27707 and is listed for sale at $1,450,000.00. This home was built in 1900, contains 4426 square feet of living space, and sits on a 2.05 acre lot. This residential home is priced at $327.61 per square foot.

If you'd like to request a tour or more information on 4125 Farrington Rd, Durham, NC 27707, please call us at 919​-249​-8536 so that we can assist you in your real estate search. To find homes like 4125 Farrington Rd, Durham, NC 27707, you can search homes for sale in Durham , or visit the neighborhood of Markham Terrace , or by 27707 . We are here to help when you're ready to contact us!

Schools Near 4125 Farrington Rd, Durham, NC 27707

Home Details
4125 Farrington Rd, Durham, NC 27707
Status
Active
MLS #ID
10134820
Price
$1,450,000
Bedrooms
5
Bathrooms
4
Square Footage
4,426
Acres
2.05
Year
1900
Days on Site
62
Property Type
Residential
Property Sub Type
Single-Family
Price per Sq Ft
$328
Date Listed
Nov 25, 2025
Community Information for 4125 Farrington Rd, Durham, NC 27707
Address
4125 Farrington Rd
State
North Carolina
Zip Code 27707
County Durham
Schools
Elementary Creekside
Middle Githens
Utilities
Sewer
Public Sewer
Water Source
Public
Interior
Interior Features
Bathtub/Shower Combination, Ceiling Fan(s), Smooth Ceilings, Vaulted Ceiling(s) and Walk-In Closet(s)
Appliances
Dishwasher, Disposal, Gas Range, Ice Maker, Microwave, Refrigerator and Self Cleaning Oven
Heating
Fireplace(s) and Forced Air
Cooling
Central Air and Dual
Fireplace
Yes
# of Fireplaces
2
Exterior
Exterior
Rain Gutters and Storage
Roof
Shingle
Garage Spaces
2
Foundation
HOA
Has HOA
None
Additional Information
Styles
Transitional
Price per Sq Ft
$328
Listed By

Favio Ruiz, 704-281-8526, DASH Carolina

Source

Triangle, MLS, MLS#: 10134820

Comments

Homes Similar to 4125 Farrington Rd, Durham, NC 27707

Related Blogs
Related Videos
HomeDurhamMarkham Terrace
What's your home worth?
Have a top local Realtor give you a FREE Comparative Market Analysis