Back to Search
4205 Swarthmore Rd, Durham, NC 27707
4205 Swarthmore Rd, Durham, NC 27707
4205 Swarthmore Rd, Durham, NC 27707
4205 Swarthmore Rd, Durham, NC 27707
4205 Swarthmore Rd, Durham, NC 27707
4205 Swarthmore Rd, Durham, NC 27707
4205 Swarthmore Rd, Durham, NC 27707

4205 Swarthmore Rd Durham, NC 27707

$1,100,000

ACTIVE
Beds
6
Baths
6
Sqft
6,621
Acres
0.77
Year
1988
Days on Site
1
Property Type
Residential
Sub Type
Single Family
Per Square Foot
$166
Date Listed
Mar 10, 2026

Description of 4205 Swarthmore Rd, Durham, NC 27707

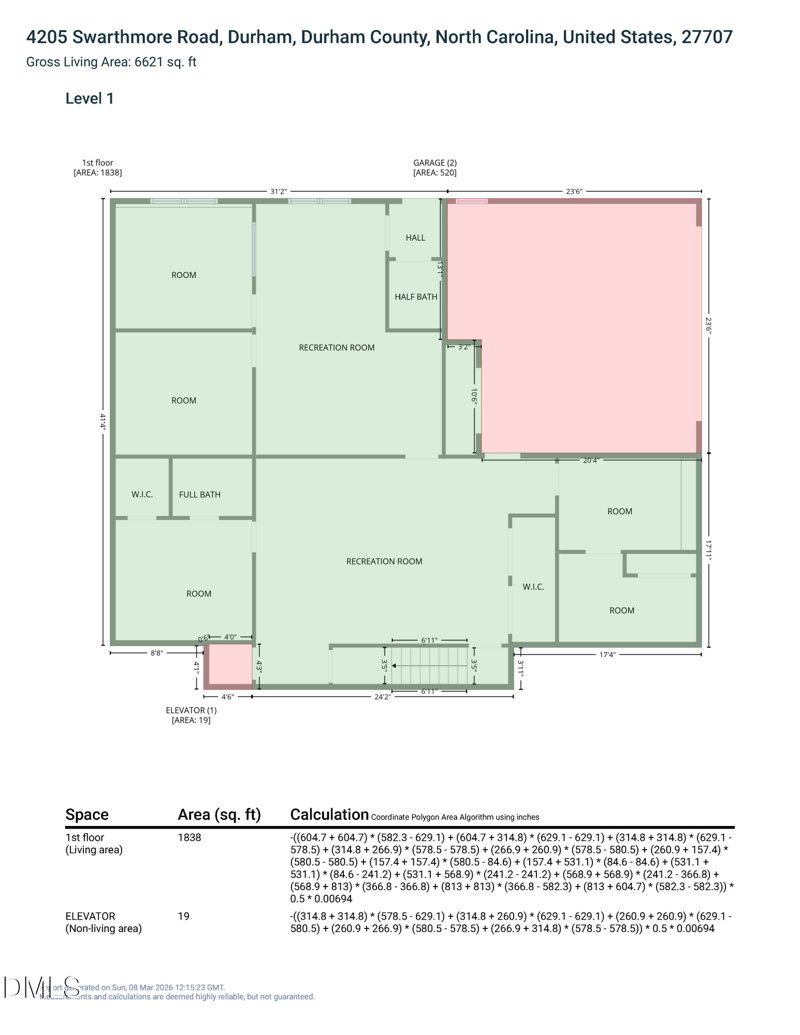
Listing details for 4205 Swarthmore Rd, Durham, NC 27707 : Experience the charm and scale of this unique Mediterranean-inspired three-level home in a desirable Durham location., easy commute to Duke/UNC/RTP.The main level welcomes you with a grand foyer, Spanish tile flooring, soaring ceilings, and an impressive family room with balcony overlook. The first-floor primary suite offers convenience and privacy, double closets and a massive spa style bathroom. The office also located on the first floor. A second full bath provides the perfect option for guests. An elevator connects all levels, leading to the lower floor where you'll find four additional bedrooms--each with its own attached bathroom--plus a spacious living or bonus area. The layout offers incredible flexibility with multiple spaces ideal for a studio, exercise room, office, or creative workspace. Recent updates include three HVAC units installed in 2024, new flooring in the bedrooms, new carpet, and fresh interior paint. Outside, the home features a circular driveway for convenient access and added curb appeal. The Driveway extends to the back where you will find two large garages and a huge backyard ready for you to make your own. Lake view from the main floor balcony during winter. Enjoy abundant storage, a built-in safe, and seasonal winter views of the lake. With its distinctive architecture and expansive layout, this property offers a rare opportunity to customize and restore a truly special home. Voluntary HOA Some of the pictures were virtually staged .
Listing Updated : 03-10-2026 at 6:30 PM EDT
Home Details
4205 Swarthmore Rd, Durham, NC 27707
Status
Active
MLS #ID
10151698
Price
$1,100,000
Bedrooms
6
Bathrooms
6
Square Footage
6,621
Acres
0.77
Year
1988
Days on Site
1
Property Type
Residential
Property Sub Type
Single-Family
Price per Sq Ft
$166
Date Listed
Mar 10, 2026
Community Information for 4205 Swarthmore Rd, Durham, NC 27707
Address
4205 Swarthmore Rd
State
North Carolina
Zip Code 27707
County Durham
Schools
Elementary Creekside
Middle Githens
Utilities
Sewer
Public Sewer
Water Source
Public
Interior
Appliances
Built-In Electric Oven, Cooktop, Microwave and Refrigerator
Heating
Hot Water and Natural Gas
Cooling
Central Air
Fireplace
No
Exterior
Roof
Metal
Garage Spaces
2
Foundation
Slab
HOA
Has HOA
None
Additional Information
Styles
Transitional
Price per Sq Ft
$166
Listing Provided By

Roberta Ager, 919-600-2699, eXp Realty, LLC - C

Source

Triangle, MLS, MLS#: 10151698

Comments
Home Worth Check

Interested in 4205 Swarthmore Rd, Durham NC, 27707?

By proceeding, you consent to receive calls, texts and voicemails at the number you provided (may be recorded and may be autodialed and use prerecorded and artificial voices), and email, from Raleigh Realty about your inquiry and other home-related matters. Msg/data rates may apply. This consent applies even if you are on a do not call list and is not a condition of any purchase.

Location of 4205 Swarthmore Rd, Durham, NC 27707

Google Map
Mortgage Calculator
Listing Price
Down Payment
Interest Rate
This beautiful 6 beds 6 baths home is located at 4205 Swarthmore Rd, Durham, NC 27707 and is listed for sale at $1,100,000.00. This home was built in 1988, contains 6621 square feet of living space, and sits on a 0.77 acre lot. This residential home is priced at $166.14 per square foot.

If you'd like to request a tour or more information on 4205 Swarthmore Rd, Durham, NC 27707, please call us at 919​-249​-8536 so that we can assist you in your real estate search. To find homes like 4205 Swarthmore Rd, Durham, NC 27707, you can search homes for sale in Durham , or visit the neighborhood of Marydell Estates , or by 27707 . We are here to help when you're ready to contact us!
Home Details
4205 Swarthmore Rd, Durham, NC 27707
Status
Active
MLS #ID
10151698
Price
$1,100,000
Bedrooms
6
Bathrooms
6
Square Footage
6,621
Acres
0.77
Year
1988
Days on Site
1
Property Type
Residential
Property Sub Type
Single-Family
Price per Sq Ft
$166
Date Listed
Mar 10, 2026
Community Information for 4205 Swarthmore Rd, Durham, NC 27707
Address
4205 Swarthmore Rd
State
North Carolina
Zip Code 27707
County Durham
Schools
Elementary Creekside
Middle Githens
Utilities
Sewer
Public Sewer
Water Source
Public
Interior
Appliances
Built-In Electric Oven, Cooktop and Microwave
Heating
Hot Water and Natural Gas
Cooling
Central Air
Fireplace
No
Exterior
Roof
Metal
Garage Spaces
2
Foundation
Slab
HOA
Has HOA
None
Additional Information
Styles
Transitional
Price per Sq Ft
$166
Listing Provided By

Roberta Ager, 919-600-2699, eXp Realty, LLC - C

Source

Triangle, MLS, MLS#: 10151698

Comments

Homes Similar to 4205 Swarthmore Rd, Durham, NC 27707

Related Videos
HomeDurhamMarydell Estates
What's your home worth?
Have a top local Realtor give you a FREE Comparative Market Analysis