Description of 112 Imagine Way, Pittsboro, NC 27312
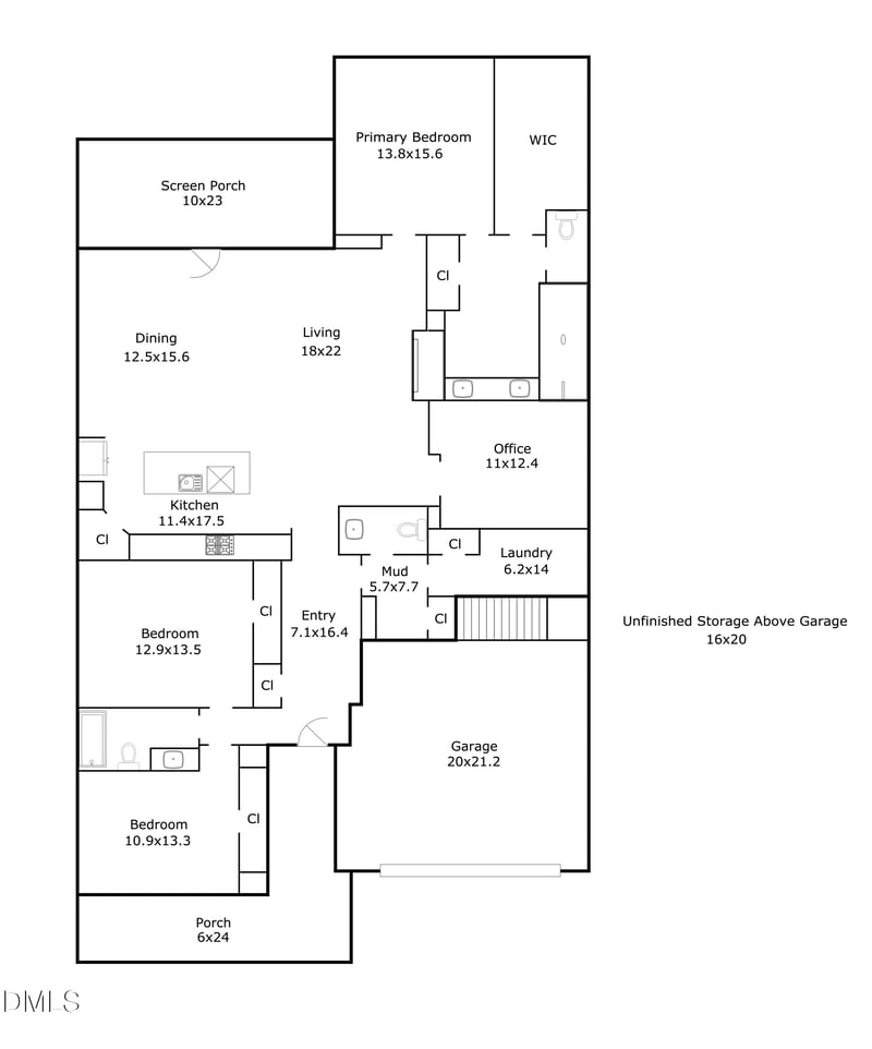
Listing details for 112 Imagine Way, Pittsboro, NC 27312 : BETTER THAN NEW single-level living in Encore, Chatham Park's 55+ community! This beautifully designed home sits on a premium homesite with open space on TWO SIDES in a completed phase of the development without construction traffic & noise or retaining walls. David Weekley's EDGEMONT floorplan is one of the wider layouts to accommodate the home's ranch design, which features a bright, open-concept living area with GAS FIREPLACE and a separate home office w/ French doors. The central chef's kitchen includes a large island, tile backsplash, quartz counters & stainless appliances. All three bedrooms are on the main level, including a private primary suite w/ zero-entry shower, dual vanities & large walk-in closet. Two large guest bedrooms in front of the home can comfortably fit king-sized beds with room to spare and the private half-bath and spacious 10x23 screened porch are perfect for guests when entertaining. Don't miss the WALK-UP STORAGE located above the 2-car garage! This green-certified home has a tankless water heater, 2x6 exterior walls and other high-performance features making it ~34% more energy-efficient than a typical new home. There is also a NEMA 14-50 EV charging outlet for your electric vehicle. OTHER IMPROVEMENTS include louvered shutters throughout ($10k), tile flooring on screened porch, upgraded interior paint, additional wood flooring, updated kitchen hardware & pull-out shelving, additional landscaping, updated lighting fixtures & ceiling fans, extended appliance warranties through Jan 2028, and more! Encore is a 55+ resort-style community with included lawn maintenance and exclusive access to a Lifestyle Club with 5000sf clubhouse, well-equipped fitness center, tennis & pickleball courts, putting green, pool & hot tub, indoor/outdoor gathering spaces, meditation garden & gas firepits, meeting spaces, miles of scenic trails, and a lifestyle director coordinating year-round events & activities! The convenient location has easy access to US-64, 15-501 & I-540 and is just 4 min to world-class medical care, 5 min to coffee, retail, dining & entertainment, 7 min to new YMCA, 14 min to Jordan Lake & 33 min to RDU Airport. VIDEO TOUR: bit.ly/112Imagine-Video *Ask about available lender credit!
View More
Listing Updated : 04-30-2026 at 6:45 PM EDT
Property Details
Overview
Status
Active
MLS #ID
10145257
Price
$687,000
Bedrooms
3
Bathrooms
3
Square Footage
2,374
Acres
0.19
Year
2023
Days on Site
84
Property Type
Residential
Property Sub Type
Single-Family
Price per Sq Ft
$289
Date Listed
Feb 7, 2026
Community Information for 112 Imagine Way, Pittsboro, NC 27312
Bathtub/Shower Combination, Bookcases, Built-in Features, Ceiling Fan(s), Crown Molding, Double Vanity, Entrance Foyer, High Ceilings, High Speed Internet, Kitchen Island, Kitchen/Dining Room Combination, Living/Dining Room Combination, Open Floorplan, Pantry, Master Downstairs, Quartz Counters, Recessed Lighting, Smart Thermostat, Smooth Ceilings, Storage, Tray Ceiling(s), Walk-In Closet(s), Walk-In Shower and Water Closet
Appliances
Dishwasher, Disposal, Electric Oven, ENERGY STAR Qualified Appliances, Gas Cooktop, Gas Water Heater, Microwave, Plumbed For Ice Maker, Range Hood, Stainless Steel Appliance(s), Tankless Water Heater, Vented Exhaust Fan and Oven
Heating
Fireplace(s), Forced Air and Natural Gas
Cooling
Ceiling Fan(s), Central Air and Electric
Fireplace
Yes
# of Fireplaces
1
Exterior
Exterior
Garden and Rain Gutters
Roof
Shingle
Garage Spaces
2
Foundation
Slab
HOA
Has HOA
Yes
Services Included
Maintenance Grounds, Storm Water Maintenance
HOA Fee
$265.05 Monthly
Additional Information
Styles
Craftsman and Ranch
Price per Sq Ft
$289
Show More
Listing Provided By
Peter Winkler, 919-360-1285, Keller Williams Elite Realty
Source
Triangle, MLS, MLS#: 10145257
Property History
DateEventPrice
4/15/2026
Price Change
$687,000 -0.7%
$289/sqft
Source:Triangle, MLS #10145257
2/7/2026
Listed for sale
$692,000
$291/sqft
Source:Triangle, MLS #10145257
Interested in 112 Imagine Way, Pittsboro NC, 27312?
Location of 112 Imagine Way, Pittsboro, NC 27312
Mortgage Calculator
Schools Near 112 Imagine Way, Pittsboro, NC 27312
Homes Similar to 112 Imagine Way, Pittsboro, NC 27312
The data relating to real estate for sale on this web site comes in part from the Internet Data ExchangeTM Program of the Triangle MLS, Inc. of Cary. Real estate listings held by brokerage firms other than Raleigh Realty Inc are marked with the Internet Data Exchange TM logo or the Internet Data ExchangeTM thumbnaillogo (the TMLS logo) and detailed information about them includes the name of the listing firms.
Listings marked with an icon are provided courtesy of the Triangle MLS, Inc. of North Carolina, Internet Data Exchange Database. Listing firm has attempted to offer accurate data, but the Information is Not Guaranteed and buyers are advised to confirm all items.