New - 10 Hours Ago
$359,900
Active
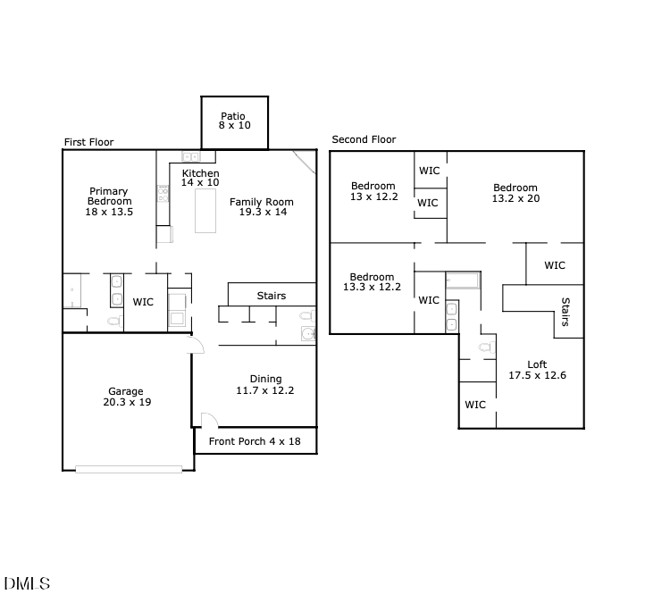
3
Beds
3
Baths
2174
Sqft
0.05
Acres
184 District Ave #266, Clayton, NC 27527
MLS#: 10144230






$349,000
PENDINGMark Hove, 919-699-5325, Nest Realty of the Triangle
Triangle, MLS, MLS#: 10123872


Mark Hove, 919-699-5325, Nest Realty of the Triangle
Triangle, MLS, MLS#: 10123872
