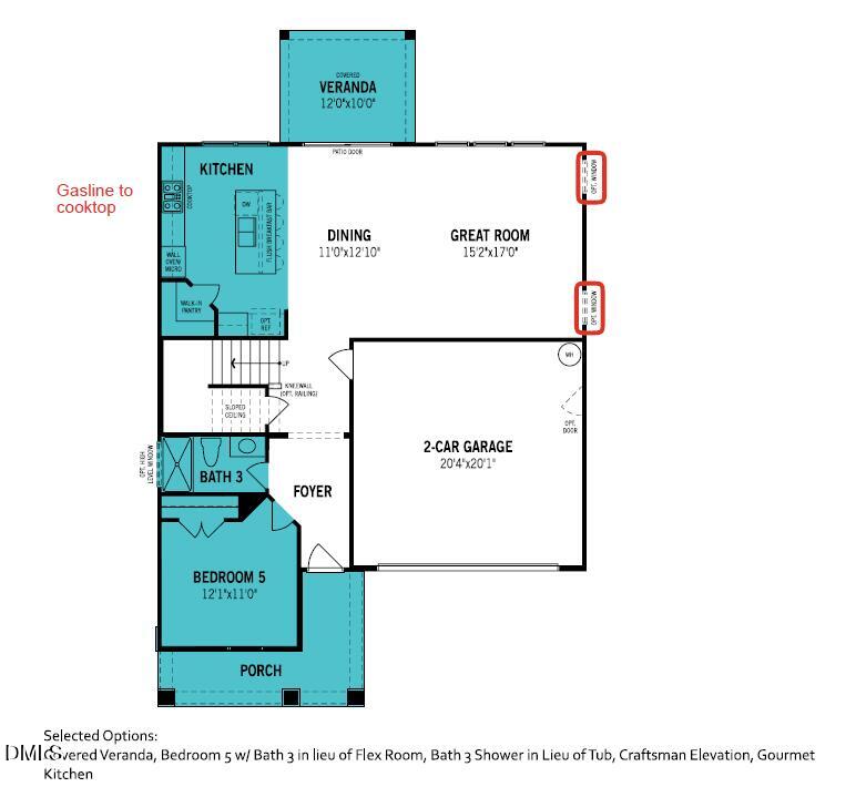
New - 2 Days Ago






$521,193
ACTIVESource Doorify MLS. We recommend clicking to confirm Wake County School Assignments or contacting WCPSS directly.
Ajit Singh, 919-645-7518, Mattamy Homes LLC
Triangle, MLS, MLS#: 10132224


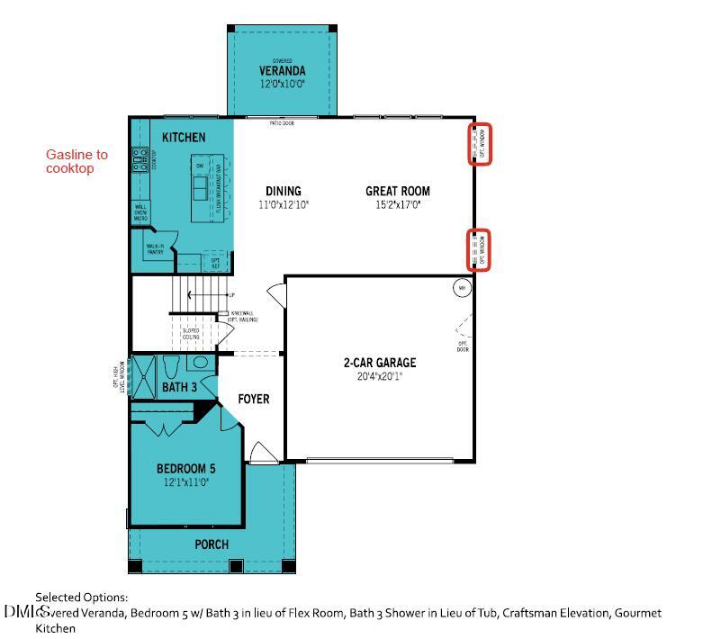
Source Doorify MLS. We recommend clicking to confirm Wake County School Assignments or contacting WCPSS directly.
Ajit Singh, 919-645-7518, Mattamy Homes LLC
Triangle, MLS, MLS#: 10132224
