Back to Search
3932 Old Chapel Hill Rd, Durham, NC 27707
3932 Old Chapel Hill Rd, Durham, NC 27707 3D Tour
3932 Old Chapel Hill Rd, Durham, NC 27707 Explore 3D Tour
3932 Old Chapel Hill Rd, Durham, NC 27707
3932 Old Chapel Hill Rd, Durham, NC 27707
3932 Old Chapel Hill Rd, Durham, NC 27707
3932 Old Chapel Hill Rd, Durham, NC 27707

3932 Old Chapel Hill Rd Durham, NC 27707

7Views
1Saves

$1,050,000

ACTIVE
Beds
6
Baths
5
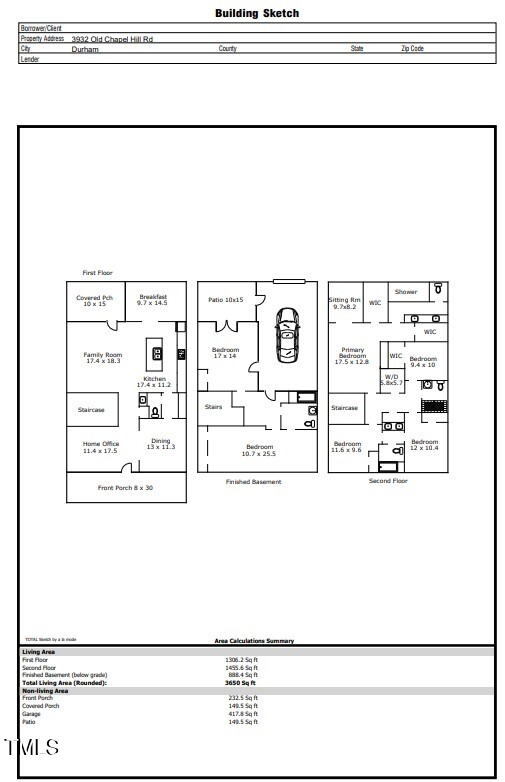
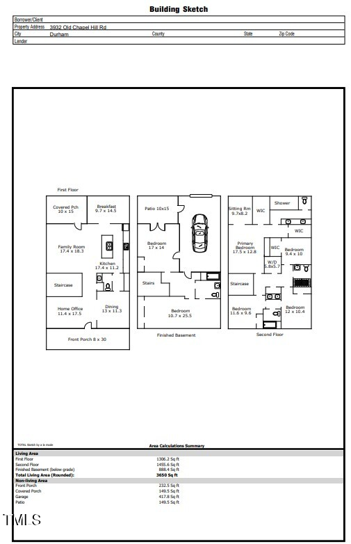
Sqft
3,650
Acres
0.24
Year
2025
Days on Site
268
Property Type
Residential
Sub Type
Single Family
Per Square Foot
$288
Date Listed
Apr 30, 2025

Description of 3932 Old Chapel Hill Rd, Durham, NC 27707

Listing details for 3932 Old Chapel Hill Rd, Durham, NC 27707 : Luxury Living in Prime Southwest Durham - Stunning New Construction Discover elevated living at 3932 Old Chapel Hill Road — a beautifully crafted new construction home nestled in the heart of Southwest Durham. Designed with discerning tastes in mind, this residence blends timeless elegance with modern convenience, all in an unbeatable location. Inside, site-finished hardwood floors, extensive custom trim, and designer tilework set the tone for quality and craftsmanship. The open-concept floor plan flows seamlessly into the heart of the home — a gourmet kitchen with custom cabinetry, upscale appliances, and a spacious butler's pantry — perfect for both everyday living and entertaining. The expansive primary suite is a true retreat, featuring custom walk-in closets and a spa-inspired bath with an enormous fully tiled walk-in shower, high-end finishes, and thoughtfully designed touches throughout. Host guests with ease thanks to the private lower-level guest suite and flexible bonus room with exterior access — ideal for a media room, home gym, or playroom. Enjoy indoor-outdoor living from the elevated balcony, ideal for relaxing or entertaining al fresco. Additional features include a garage with an electric vehicle charging station and beautifully appointed entertaining spaces. All this just minutes to Duke University, Downtown Durham, Chapel Hill, I-40, and an array of shopping and dining destinations.
Listing Updated : 10-28-2025 at 02:09 PM EST
Home Details
3932 Old Chapel Hill Rd, Durham, NC 27707
Status
Active
MLS #ID
10092855
Price
$1,050,000
Bedrooms
6
Bathrooms
5
Square Footage
3,650
Acres
0.24
Year
2025
Days on Site
268
Property Type
Residential
Property Sub Type
Single-Family
Price per Sq Ft
$288
Date Listed
Apr 30, 2025
Community Information for 3932 Old Chapel Hill Rd, Durham, NC 27707
Address
3932 Old Chapel Hill Rd
State
North Carolina
Zip Code 27707
County Durham
Schools
Utilities
Sewer
Public Sewer
Water Source
Public
Interior
Interior Features
Bookcases, Built-in Features, Ceiling Fan(s), Crown Molding, Double Vanity, High Ceilings, Kitchen Island, Open Floorplan, Recessed Lighting, Smooth Ceilings, Walk-In Shower and Water Closet
Appliances
Dishwasher, Electric Range, Electric Water Heater, Microwave, Plumbed For Ice Maker, Range Hood and Stainless Steel Appliance(s)
Heating
Central and Forced Air
Cooling
Central Air and Electric
Fireplace
No
Exterior
Exterior
Balcony and Rain Gutters
Roof
Shingle
Garage Spaces
1
Foundation
Slab
HOA
Has HOA
None
Additional Information
Styles
Transitional
Price per Sq Ft
$288
Listed By

Jenny Barber, 919-624-9532, Allen Tate / Durham

Source

Triangle, MLS, MLS#: 10092855

Comments
Home Worth Check

Interested in 3932 Old Chapel Hill Rd, Durham NC, 27707?

By proceeding, you consent to receive calls, texts and voicemails at the number you provided (may be recorded and may be autodialed and use prerecorded and artificial voices), and email, from Raleigh Realty about your inquiry and other home-related matters. Msg/data rates may apply. This consent applies even if you are on a do not call list and is not a condition of any purchase.

Location of 3932 Old Chapel Hill Rd, Durham, NC 27707

Google Map
Mortgage Calculator
Listing Price
Down Payment
Interest Rate
This beautiful 6 beds 5 baths home is located at 3932 Old Chapel Hill Rd, Durham, NC 27707 and is listed for sale at $1,050,000.00. This home was built in 2025, contains 3650 square feet of living space, and sits on a 0.24 acre lot. This residential home is priced at $287.67 per square foot.

If you'd like to request a tour or more information on 3932 Old Chapel Hill Rd, Durham, NC 27707, please call us at 919​-249​-8536 so that we can assist you in your real estate search. To find homes like 3932 Old Chapel Hill Rd, Durham, NC 27707, you can search homes for sale in Durham , or visit the neighborhood of Not In A Subdivision , or by 27707 . We are here to help when you're ready to contact us!

Schools Near 3932 Old Chapel Hill Rd, Durham, NC 27707

Home Details
3932 Old Chapel Hill Rd, Durham, NC 27707
Status
Active
MLS #ID
10092855
Price
$1,050,000
Bedrooms
6
Bathrooms
5
Square Footage
3,650
Acres
0.24
Year
2025
Days on Site
268
Property Type
Residential
Property Sub Type
Single-Family
Price per Sq Ft
$288
Date Listed
Apr 30, 2025
Community Information for 3932 Old Chapel Hill Rd, Durham, NC 27707
Address
3932 Old Chapel Hill Rd
State
North Carolina
Zip Code 27707
County Durham
Schools
Utilities
Sewer
Public Sewer
Water Source
Public
Interior
Interior Features
Bookcases, Built-in Features, Ceiling Fan(s), Crown Molding, Double Vanity, High Ceilings, Kitchen Island, Open Floorplan, Recessed Lighting, Smooth Ceilings and Walk-In Shower
Appliances
Dishwasher, Electric Range, Electric Water Heater, Microwave, Plumbed For Ice Maker and Range Hood
Heating
Central and Forced Air
Cooling
Central Air and Electric
Fireplace
No
Exterior
Exterior
Balcony and Rain Gutters
Roof
Shingle
Garage Spaces
1
Foundation
Slab
HOA
Has HOA
None
Additional Information
Styles
Transitional
Price per Sq Ft
$288
Listed By

Jenny Barber, 919-624-9532, Allen Tate / Durham

Source

Triangle, MLS, MLS#: 10092855

Comments

Homes Similar to 3932 Old Chapel Hill Rd, Durham, NC 27707

Related Blogs
Related Videos
HomeDurhamNot In A Subdivision
What Our Customers Say
reviews
(631)
Panel only seen by widget owner
What's your home worth?
Have a top local Realtor give you a FREE Comparative Market Analysis