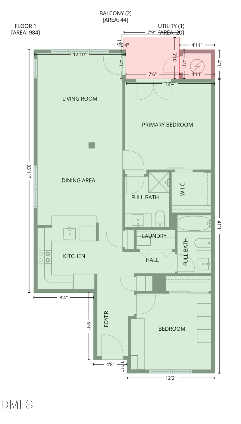
New - 9 Hours Ago






$399,000
PENDINGSource Doorify MLS. We recommend clicking to confirm Wake County School Assignments or contacting WCPSS directly.
Mary Jamison, 919-796-4177, List 2 Buy, Inc.
Triangle, MLS, MLS#: 10130204


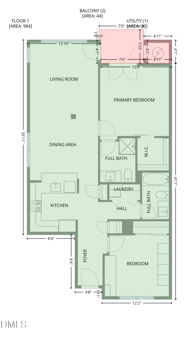
Source Doorify MLS. We recommend clicking to confirm Wake County School Assignments or contacting WCPSS directly.
Mary Jamison, 919-796-4177, List 2 Buy, Inc.
Triangle, MLS, MLS#: 10130204
