Back to Search
1015 Harvey St, Raleigh, NC 27608
1015 Harvey St, Raleigh, NC 27608 3D Tour
1015 Harvey St, Raleigh, NC 27608 Explore 3D Tour
1015 Harvey St, Raleigh, NC 27608
1015 Harvey St, Raleigh, NC 27608
1015 Harvey St, Raleigh, NC 27608
1015 Harvey St, Raleigh, NC 27608

1015 Harvey St Raleigh, NC 27608

2Views
0Saves

$2,850,000

ACTIVE
Beds
4
Baths
4
Sqft
4,887
Acres
0.37
Year
1920
Days on Site
85
Property Type
Residential
Sub Type
Single Family
Per Square Foot
$583
Date Listed
Nov 2, 2025

Description of 1015 Harvey St, Raleigh, NC 27608

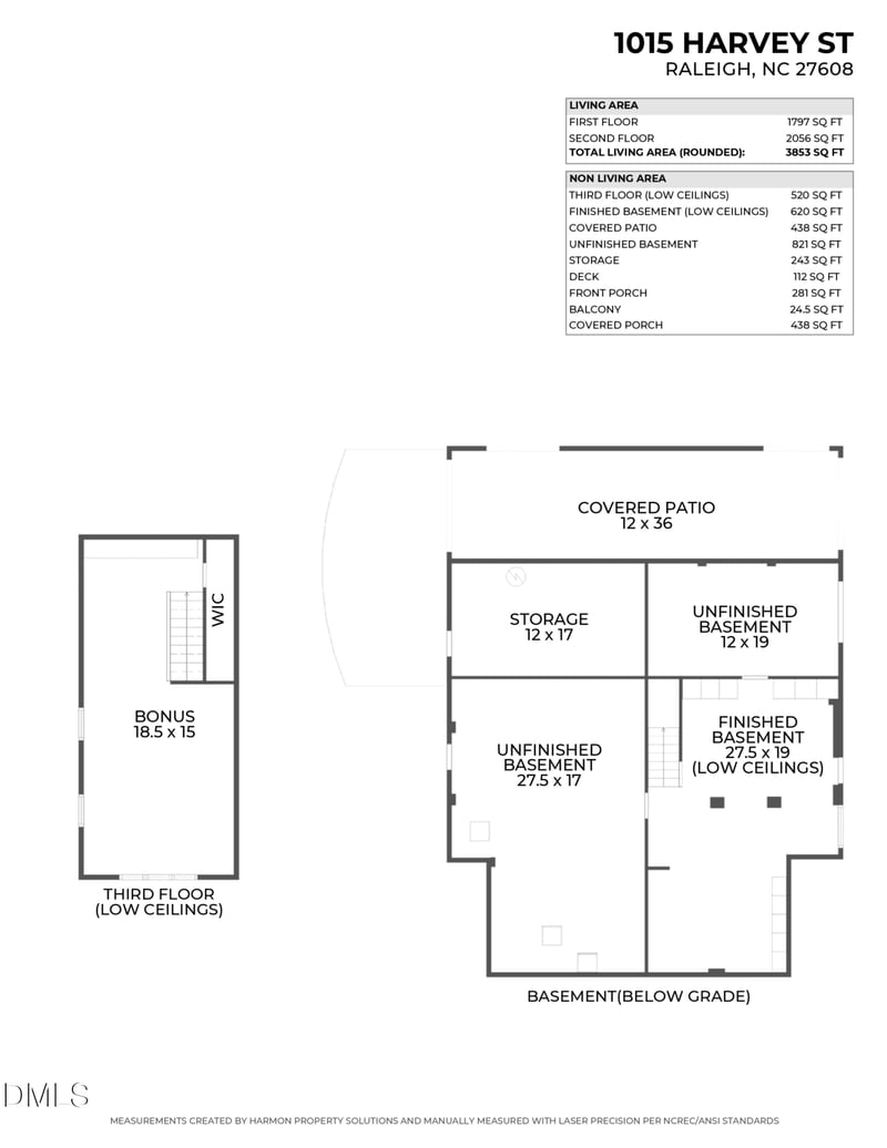
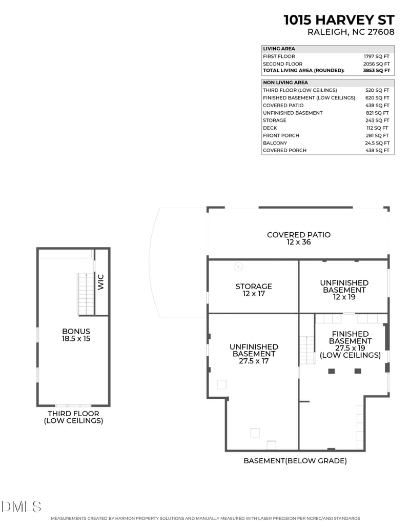
Listing details for 1015 Harvey St, Raleigh, NC 27608 : 1015 Harvey Street has a rich history of transformations! Built in 1920 in the historic Hayes Barton neighborhood, it began as a substantial residence. During World War II, the property was divided and converted into apartments to address housing shortages, a common fate for larger homes in the era. After its time as apartments, it transitioned back to a single-family home, undergoing significant updates and extensive modern renovations while retaining its classic charm, blending original features with modern elegance. It is considered a contributing resource to the Hayes Barton Historic District, which is listed on the National Register of Historic Places. Every inch of this beautifully updated home has been thoughtfully designed and no space is wasted. The completely renovated kitchen can easily be described as a chef's kitchen, featuring quartz countertops, a large island that easily seats six, deep storage drawers, prep sink, and top-of-the-line appliances: a Wolf gas range with six burners, infrared griddle, and double ovens; pot filler, Sub-Zero refrigerator with freezer drawers; and Sub-Zero wine fridge with beverage drawers. A walk-in china closet, walk-in pantry, and wet bar provide even more storage and function. The living room exudes character with gas logs, custom built-ins and beautiful natural light with French doors to the front porch. The adjoining den has a wood-burning fireplace with gas-starter and don't miss the storage / stereo closet. More French doors lead out to the back covered porch. Upstairs, the primary suite is a true retreat with a sitting area, stunning en suite bath featuring a soaking tub, large shower, and double vanities. Enjoy two double closets, a large walk-in closet, and even a workout nook overlooking the garden. Three additional bedrooms, two renovated full baths, laundry room, and oversized linen closet complete the second floor. The third floor offers flexible living space ideal for a 5th bedroom, playroom, reading nook, hobby area, or media room. The partially finished basement includes tall, personalized storage cabinets, abundant shelving, and drawers, and is perfect for an office, kids or teen hangout. A large unfinished section provides even more storage, and the unfinished, but upgraded, back room provides the perfect spot for a home gym. It includes walk-out access to the outdoor ''ping pong den'' and custom playhouse! The 12 x 38 covered porch, overlooking the lush, private backyard, is an outdoor living space to enjoy year-round. A meandering stone walkway leads to a charming fire pit in the back, ideal for gatherings under the stars. Newer roof, new HVAC systems, water heater, electrical and plumbing. This home truly offers the best of old Hayes Barton character and modern luxury. It's beautiful, functional, and perfectly designed for today's lifestyle. A 10 minute walk to Five Points. .4 miles to Glenwood South, 1 mile to The Village, close to downtown and The Village. 10 minutes to Downtown Raleigh. 2.9 miles to North Hills. 18 minutes to RDU. NOTE: The third floor has 544 finished square feet total; the majority is not 7' high. Also, the finished 620 sq.ft. of the basement ceiling height is 6'9'' after the sellers improved the space by adding a sheetrock ceiling.
Listing Updated : 01-24-2026 at 01:15 AM EST
Home Details
1015 Harvey St, Raleigh, NC 27608
Status
Active
MLS #ID
10130996
Price
$2,850,000
Bedrooms
4
Bathrooms
4
Square Footage
4,887
Acres
0.37
Year
1920
Days on Site
85
Property Type
Residential
Property Sub Type
Single-Family
Price per Sq Ft
$583
Date Listed
Nov 2, 2025
Community Information for 1015 Harvey St, Raleigh, NC 27608
Address
1015 Harvey St
State
North Carolina
Zip Code 27608
County Wake
Subdivision Hayes Barton
Schools
Elementary Lacy
Middle Oberlin
Utilities
Sewer
Public Sewer
Water Source
Public
Interior
Interior Features
Bathtub Only, Bookcases, Built-in Features, Pantry, Cathedral Ceiling(s), Cedar Closet(s), Ceiling Fan(s), Crown Molding, Double Vanity, Dual Closets, Eat-in Kitchen, Entrance Foyer, High Ceilings, High Speed Internet, Kitchen Island, Quartz Counters, Recessed Lighting, Separate Shower, Shower Only, Smooth Ceilings, Soaking Tub, Storage, Walk-In Closet(s), Walk-In Shower, Water Closet, Wet Bar and Wired for Sound
Appliances
Built-In Refrigerator, Dishwasher, Gas Range, Gas Water Heater, Plumbed For Ice Maker, Range Hood, Self Cleaning Oven and Wine Refrigerator
Heating
Forced Air, Natural Gas and Zoned
Cooling
Ceiling Fan(s), Central Air, Electric, Wall/Window Unit(s) and Zoned
Fireplace
No
Exterior
Exterior
Fenced Yard, Fire Pit, Garden, Private Yard and Rain Gutters
Roof
Shingle,See Remarks
Foundation
Other
HOA
Has HOA
None
Additional Information
Styles
Traditional
Price per Sq Ft
$583
Listed By

Cindy Roberts, 919-457-8181, Merriment Realty

Source

Triangle, MLS, MLS#: 10130996

Comments
Home Worth Check

Interested in 1015 Harvey St, Raleigh NC, 27608?

By proceeding, you consent to receive calls, texts and voicemails at the number you provided (may be recorded and may be autodialed and use prerecorded and artificial voices), and email, from Raleigh Realty about your inquiry and other home-related matters. Msg/data rates may apply. This consent applies even if you are on a do not call list and is not a condition of any purchase.

Location of 1015 Harvey St, Raleigh, NC 27608

Google Map
Mortgage Calculator
Listing Price
Down Payment
Interest Rate
This beautiful 4 beds 4 baths home is located at 1015 Harvey St, Raleigh, NC 27608 and is listed for sale at $2,850,000.00. This home was built in 1920, contains 4887 square feet of living space, and sits on a 0.37 acre lot. This residential home is priced at $583.18 per square foot.

If you'd like to request a tour or more information on 1015 Harvey St, Raleigh, NC 27608, please call us at 919​-249​-8536 so that we can assist you in your real estate search. To find homes like 1015 Harvey St, Raleigh, NC 27608, you can search homes for sale in Raleigh , or visit the neighborhood of Hayes Barton , or by 27608 . We are here to help when you're ready to contact us!

Schools Near 1015 Harvey St, Raleigh, NC 27608

Home Details
1015 Harvey St, Raleigh, NC 27608
Status
Active
MLS #ID
10130996
Price
$2,850,000
Bedrooms
4
Bathrooms
4
Square Footage
4,887
Acres
0.37
Year
1920
Days on Site
85
Property Type
Residential
Property Sub Type
Single-Family
Price per Sq Ft
$583
Date Listed
Nov 2, 2025
Community Information for 1015 Harvey St, Raleigh, NC 27608
Address
1015 Harvey St
State
North Carolina
Zip Code 27608
County Wake
Subdivision Hayes Barton
Schools
Elementary Lacy
Middle Oberlin
Utilities
Sewer
Public Sewer
Water Source
Public
Interior
Interior Features
Bathtub Only, Bookcases, Built-in Features, Pantry, Cathedral Ceiling(s), Cedar Closet(s), Ceiling Fan(s), Crown Molding, Double Vanity, Dual Closets, Eat-in Kitchen, Entrance Foyer, High Ceilings, High Speed Internet, Kitchen Island, Quartz Counters, Recessed Lighting, Separate Shower, Shower Only, Smooth Ceilings, Soaking Tub, Storage, Walk-In Closet(s), Walk-In Shower, Water Closet and Wet Bar
Appliances
Built-In Refrigerator, Dishwasher, Gas Range, Gas Water Heater, Plumbed For Ice Maker, Range Hood and Self Cleaning Oven
Heating
Forced Air and Natural Gas
Cooling
Ceiling Fan(s), Central Air, Electric and Wall/Window Unit(s)
Fireplace
No
Exterior
Exterior
Fenced Yard, Fire Pit, Garden and Private Yard
Roof
Shingle,See Remarks
Foundation
Other
HOA
Has HOA
None
Additional Information
Styles
Traditional
Price per Sq Ft
$583
Listed By

Cindy Roberts, 919-457-8181, Merriment Realty

Source

Triangle, MLS, MLS#: 10130996

Comments

Homes Similar to 1015 Harvey St, Raleigh, NC 27608

Related Blogs
Related Videos
HomeRaleighHayes Barton
What Our Customers Say
reviews
(631)
Panel only seen by widget owner
What's your home worth?
Have a top local Realtor give you a FREE Comparative Market Analysis