New - 6 Days Ago
$1,036,000
Active
5
Beds
4
Baths
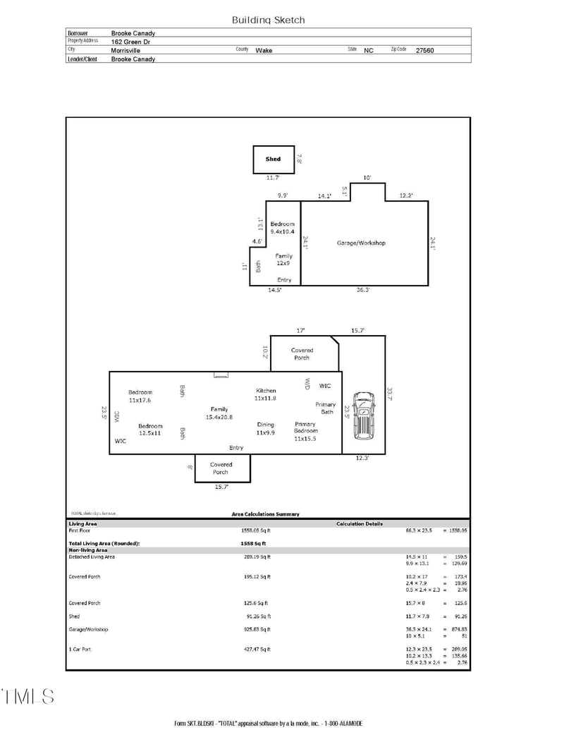
4932.4
Sqft
0.14
Acres
1037 Bender Ridge Dr, Morrisville, NC 27560
MLS#: 10145678






$990,000
ACTIVEBrooke Canady, 919-337-5823, Compass -- Cary
Triangle, MLS, MLS#: 10103478


Brooke Canady, 919-337-5823, Compass -- Cary
Triangle, MLS, MLS#: 10103478
