Listings
Market Stats
Popular Searches

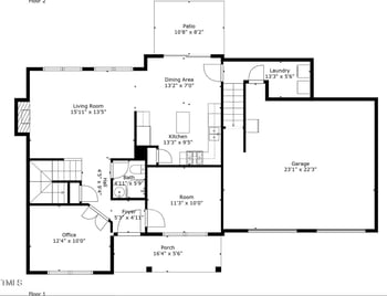
Homes & Real Estate - Downing Glen, Morrisville, NC

HomeMorrisville
3 Properties Found
Sort By:

Current Real Estate Statistics for Homes in Morrisville, NC (Community: Downing Glen)

3
Homes Listed
46
Avg. Days on Site
$269
Avg. $ / Sq.Ft.
$494,647
Med. List Price
What's your home worth?
Have a top local Realtor give you a FREE Comparative Market Analysis