Back to Search
306 White Birch Ln, Angier, NC 27501
306 White Birch Ln, Angier, NC 27501 3D Tour
306 White Birch Ln, Angier, NC 27501 Explore 3D Tour
306 White Birch Ln, Angier, NC 27501
306 White Birch Ln, Angier, NC 27501
306 White Birch Ln, Angier, NC 27501
306 White Birch Ln, Angier, NC 27501

306 White Birch Ln Angier, NC 27501

0Views
0Saves

$381,000

CLOSED
Beds
4
Baths
3
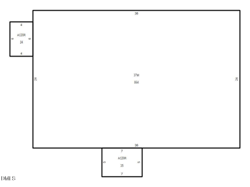
Sqft
2,491
Acres
0.14
Year
2024
Days on Site
408
Property Type
Residential
Sub Type
Single Family
Per Square Foot
$153
Date Listed
Nov 26, 2024

Description of 306 White Birch Ln, Angier, NC 27501

Listing details for 306 White Birch Ln, Angier, NC 27501 : Home ready January 2025 - Right now, enjoy up to $30,000 towards closing costs on us when using our preferred lender & attorney. PLUS, take the stress out of moving with included washer, dryer, fridge AND blinds. Perfectly located on the edge of downtown Angier, this great location offers convenient access to NC-55 & NC-401, with boundless unique dining, shopping and entertainment options right at this home's doorstep. A brand new playground and walking trails dot this community's footprint. This brand new home thoughtfully blends versatility and flexibility with luxurious features. Downstairs, a luxurious oversized kitchen anchors the open concept living space flooded by natural light, while a first-floor flex space makes for the perfect home office. Upstairs, the second story loft helps separate the primary bedroom from the secondary bedrooms.
Listing Updated : 10-28-2025 at 09:09 AM EST
Home Details
306 White Birch Ln, Angier, NC 27501
Status
Closed
MLS #ID
10065177
Price
$381,000
Close Price
$362,000
Close Date
Apr 10, 2025
Bedrooms
4
Bathrooms
3
Square Footage
2,491
Acres
0.14
Year
2024
Days on Site
408
Property Type
Residential
Property Sub Type
Single-Family
Price per Sq Ft
$153
Date Listed
Nov 26, 2024
Community Information for 306 White Birch Ln, Angier, NC 27501
Address
306 White Birch Ln
State
North Carolina
Zip Code 27501
County Harnett
Subdivision River Glen
Interior
Interior Features
Bathtub/Shower Combination, Entrance Foyer, Pantry, Smart Home, Smooth Ceilings, Walk-In Shower and Water Closet
Appliances
ENERGY STAR Qualified Appliances, Gas Water Heater and Tankless Water Heater
Heating
Heat Pump
Cooling
Heat Pump
Fireplace
No
Exterior
Roof
Shingle
Garage Spaces
2
Foundation
Slab
HOA
Has HOA
Yes
Services included
None
HOA fee
$66.5 Monthly
Additional Information
Styles
Traditional
Price per Sq Ft
$153
Listed By

Jebbie Zulka, 984-343-1025, Meritage Homes of the Carolina

Source

Triangle, MLS, MLS#: 10065177

Comments
Home Worth Check

Interested in 306 White Birch Ln, Angier NC, 27501?

By proceeding, you consent to receive calls, texts and voicemails at the number you provided (may be recorded and may be autodialed and use prerecorded and artificial voices), and email, from Raleigh Realty about your inquiry and other home-related matters. Msg/data rates may apply. This consent applies even if you are on a do not call list and is not a condition of any purchase.

Location of 306 White Birch Ln, Angier, NC 27501

Google Map
Mortgage Calculator
Listing Price
Down Payment
Interest Rate
This beautiful 4 beds 3 baths home is located at 306 White Birch Ln, Angier, NC 27501 and is listed for sale at $381,000.00. This home was built in 2024, contains 2491 square feet of living space, and sits on a 0.14 acre lot. This residential home is priced at $152.95 per square foot.

If you'd like to request a tour or more information on 306 White Birch Ln, Angier, NC 27501, please call us at 919​-249​-8536 so that we can assist you in your real estate search. To find homes like 306 White Birch Ln, Angier, NC 27501, you can search homes for sale in Angier , or visit the neighborhood of River Glen , or by 27501 . We are here to help when you're ready to contact us!

Schools Near 306 White Birch Ln, Angier, NC 27501

Home Details
306 White Birch Ln, Angier, NC 27501
Status
Closed
MLS #ID
10065177
Price
$381,000
Close Price
$362,000
Close Date
Apr 10, 2025
Bedrooms
4
Bathrooms
3
Square Footage
2,491
Acres
0.14
Year
2024
Days on Site
408
Property Type
Residential
Property Sub Type
Single-Family
Price per Sq Ft
$153
Date Listed
Nov 26, 2024
Community Information for 306 White Birch Ln, Angier, NC 27501
Address
306 White Birch Ln
State
North Carolina
Zip Code 27501
County Harnett
Subdivision River Glen
Interior
Interior Features
Bathtub/Shower Combination, Entrance Foyer, Pantry, Smart Home, Smooth Ceilings and Walk-In Shower
Appliances
ENERGY STAR Qualified Appliances and Gas Water Heater
Heating
Heat Pump
Cooling
Heat Pump
Fireplace
No
Exterior
Roof
Shingle
Garage Spaces
2
Foundation
Slab
HOA
Has HOA
Yes
Services included
None
HOA fee
$66.5 Monthly
Additional Information
Styles
Traditional
Price per Sq Ft
$153
Listed By

Jebbie Zulka, 984-343-1025, Meritage Homes of the Carolina

Source

Triangle, MLS, MLS#: 10065177

Comments

Homes Similar to 306 White Birch Ln, Angier, NC 27501

Related Blogs
HomeAngierRiver Glen
What's your home worth?
Have a top local Realtor give you a FREE Comparative Market Analysis