Back to Search
403 12 Carolina Ave, Raleigh, NC 27606
403 12 Carolina Ave, Raleigh, NC 27606 3D Tour
403 12 Carolina Ave, Raleigh, NC 27606 Explore 3D Tour
403 12 Carolina Ave, Raleigh, NC 27606
403 12 Carolina Ave, Raleigh, NC 27606
403 12 Carolina Ave, Raleigh, NC 27606
403 12 Carolina Ave, Raleigh, NC 27606

403 12 Carolina Ave Raleigh, NC 27606

$845,000

ACTIVE
Beds
5
Baths
4
Sqft
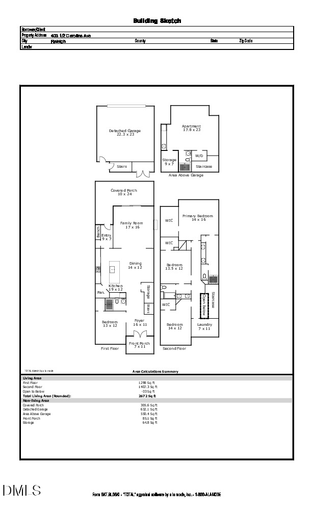
2,672
Acres
0.14
Year
2019
Days on Site
32
Property Type
Residential
Sub Type
Single Family
Per Square Foot
$316
Date Listed
Apr 1, 2026

Description of 403 12 Carolina Ave, Raleigh, NC 27606

Listing details for 403 12 Carolina Ave, Raleigh, NC 27606 : Be a part of the Sports and Entertainment District of Raleigh! This home offers over 3,200 sq ft of living space and features a floor plan that blends modern living with timeless elegance. The main house boasts four spacious bedrooms and three full baths. The detached two-car garage includes 550 sq ft of separate living or studio space, or it can be rented to generate additional income. Updated light fixtures, site-finished white oak flooring, and striking tile make this home especially desirable. Tall ceilings and oversized doors and windows provide abundant natural light throughout. This prime location is just minutes by car or public transit from the North Carolina Museum of Art, Meredith College, North Carolina State University, and the JC Raulston Arboretum. Within walking distance are the Lenovo Center, Carter-Finley Stadium, and the North Carolina State Fairgrounds. With the 440 Beltline, Interstate 40, and Highway 54 nearby, the entire Triangle is within easy reach. Don't miss this rare opportunity--reach out and schedule your showing today!
Listing Updated : 04-17-2026 at 8:28 AM EDT
Listing Provided By

Shannon Clark, 919-389-2295, Nest Realty of the Triangle

Source

Triangle, MLS, MLS#: 10156696

Property History

DateEventPrice
4/1/2026
Listed for sale
$845,000 +9%
$316/sqft
Source:Triangle, MLS #10156696
9/6/2024
Sold
$775,000
$290/sqft
Source:Triangle, MLS #10029194
5/14/2024
Listed for sale
Source:Triangle, MLS #10029194
Home Worth Check

Interested in 403 12 Carolina Ave, Raleigh NC, 27606?

By proceeding, you consent to receive calls, texts and voicemails at the number you provided (may be recorded and may be autodialed and use prerecorded and artificial voices), and email, from Raleigh Realty about your inquiry and other home-related matters. Msg/data rates may apply. This consent applies even if you are on a do not call list and is not a condition of any purchase.

Location of 403 12 Carolina Ave, Raleigh, NC 27606

Google Map
Mortgage Calculator
Listing Price
Down Payment
Interest Rate

Schools Near 403 12 Carolina Ave, Raleigh, NC 27606

Homes Similar to 403 12 Carolina Ave, Raleigh, NC 27606

Related Blogs

TMLS logo - Raleigh Realty Homes for Sale & Real Estate

The data relating to real estate for sale on this web site comes in part from the Internet Data ExchangeTM Program of the Triangle MLS, Inc. of Cary. Real estate listings held by brokerage firms other than Raleigh Realty Inc are marked with the Internet Data Exchange TM logo or the Internet Data ExchangeTM thumbnaillogo (the TMLS logo) and detailed information about them includes the name of the listing firms.

Listings marked with an icon are provided courtesy of the Triangle MLS, Inc. of North Carolina, Internet Data Exchange Database. Listing firm has attempted to offer accurate data, but the Information is Not Guaranteed and buyers are advised to confirm all items.

HomeRaleighNot In A Subdivision
What's your home worth?
Have a top local Realtor give you a FREE Comparative Market Analysis