Back to Search
5053 Lundy Dr #101, Raleigh, NC 27606
5053 Lundy Dr #101, Raleigh, NC 27606 3D Tour
5053 Lundy Dr #101, Raleigh, NC 27606 Explore 3D Tour
5053 Lundy Dr #101, Raleigh, NC 27606
5053 Lundy Dr #101, Raleigh, NC 27606
5053 Lundy Dr #101, Raleigh, NC 27606
5053 Lundy Dr #101, Raleigh, NC 27606

5053 Lundy Dr #101 Raleigh, NC 27606

$559,000

LISTING REMOVED
Beds
3
Baths
4
Sqft
2,375
Acres
0
Year
2024
Days on Site
413
Property Type
Residential
Sub Type
Townhouse
Per Square Foot
$235
Date Listed
Apr 26, 2024

Description of 5053 Lundy Dr #101, Raleigh, NC 27606

Listing details for 5053 Lundy Dr #101, Raleigh, NC 27606 : Welcome to Wrenwood—where modern, metro vibes meet a serene, lakeside mentality. Step into seamless Oak City living. Phase one? Sold out. Phase two? Move-in-ready with fresh floor plans boasting over 2,400 SQ FT across three sunlit levels. And for a limited time, select plans come with $25,000 in buyer incentives—score big while it lasts! Tucked near the Lenovo Center, Lake Johnson, and just minutes from Downtown Raleigh and NCSU, Wrenwood puts you right where the action is. This community features 26 move-in-ready homes in 13 duet-style builds—offering the space of a 3 BR, 3.5 BA single-family home with none of the maintenance hassles. The open-concept main level is built for real life—think a spacious family room, sleek chef's kitchen, and formal dining, all with curated, modern finishes. Private suites keep things chill, while outdoor patios and shared spaces are made for hosting. Need extra room? The finished third level flexes with you—home office, guest suite, media room, gym—whatever fits your vibe, your designer loft is ready to handle the heavy lifting. Living at Wrenwood means you're steps from Harris Teeter and local eats, with the NC State Fairground and the North Carolina Museum of Art less than two miles away. Ready to level up your lifestyle? Life on Lundy is calling, but who knows for how long? Don't get left behind!
Listing Updated : 06-12-2025 at 11:08 AM EST
Home Details
5053 Lundy Dr #101, Raleigh, NC 27606
Status
Listing Removed
MLS #ID
10025676
Price
$559,000
Bedrooms
3
Bathrooms
4
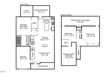
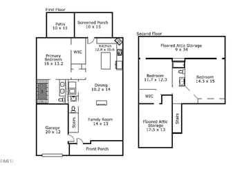
Square Footage
2,375
Acres
0
Year
2024
Days on Site
413
Property Type
Residential
Property Sub Type
Townhouse
Price per Sq Ft
$235
Date Listed
Apr 26, 2024
Community Information for 5053 Lundy Dr #101, Raleigh, NC 27606
Address
5053 Lundy Dr #101
State
North Carolina
Zip Code 27606
County Wake
Subdivision Wrenwood
Schools
Interior
Interior Features
Bathtub/Shower Combination, Ceiling Fan(s), Double Vanity, Entrance Foyer, High Ceilings, Kitchen Island, Pantry, Quartz Counters, Shower Only, Smooth Ceilings, Storage, Walk-In Closet(s), Walk-In Shower and Water Closet
Appliances
Dishwasher, Electric Range, Electric Water Heater, ENERGY STAR Qualified Appliances, Microwave, Plumbed For Ice Maker, Refrigerator and Self Cleaning Oven
Heating
Electric, Heat Pump and Zoned
Cooling
Central Air, Electric, Heat Pump and Zoned
Fireplace
No
Exterior
Exterior
Rain Gutters
Roof
Shingle
Foundation
Slab
HOA
Has HOA
Yes
Services included
None
HOA fee
$210 Monthly
Additional Information
Styles
Craftsman and Traditional
Price per Sq Ft
$235
Listed By

Johnny Chappell, 919-737-2247, Compass -- Raleigh

Source

Triangle, MLS, MLS#: 10025676

Source Logo
Comments
Home Worth Check

Interested in 5053 Lundy Dr #101, Raleigh NC, 27606?

By proceeding, you consent to receive calls, texts and voicemails at the number you provided (may be recorded and may be autodialed and use prerecorded and artificial voices), and email, from Raleigh Realty about your inquiry and other home-related matters. Msg/data rates may apply. This consent applies even if you are on a do not call list and is not a condition of any purchase.

Location of 5053 Lundy Dr #101, Raleigh, NC 27606

Google Map
Mortgage Calculator
Listing Price
Down Payment
Interest Rate
This beautiful 3 beds 4 baths home is located at 5053 Lundy Dr #101, Raleigh, NC 27606 and is listed for sale at $559,000.00. This home was built in 2024, contains 2375 square feet of living space, and sits on a 0 acre lot. This residential home is priced at $235.37 per square foot.

If you'd like to request a tour or more information on 5053 Lundy Dr #101, Raleigh, NC 27606, please call us at 919​-249​-8536 so that we can assist you in your real estate search. To find homes like 5053 Lundy Dr #101, Raleigh, NC 27606, you can search homes for sale in Raleigh , or visit the neighborhood of Wrenwood , or by 27606 . We are here to help when you're ready to contact us!

Schools Near 5053 Lundy Dr #101, Raleigh, NC 27606

Home Details
5053 Lundy Dr #101, Raleigh, NC 27606
Status
Listing Removed
MLS #ID
10025676
Price
$559,000
Bedrooms
3
Bathrooms
4
Square Footage
2,375
Acres
0
Year
2024
Days on Site
413
Property Type
Residential
Property Sub Type
Townhouse
Price per Sq Ft
$235
Date Listed
Apr 26, 2024
Community Information for 5053 Lundy Dr #101, Raleigh, NC 27606
Address
5053 Lundy Dr #101
State
North Carolina
Zip Code 27606
County Wake
Subdivision Wrenwood
Schools
Interior
Interior Features
Bathtub/Shower Combination, Ceiling Fan(s), Double Vanity, Entrance Foyer, High Ceilings, Kitchen Island, Pantry, Quartz Counters, Shower Only, Smooth Ceilings, Storage, Walk-In Closet(s) and Walk-In Shower
Appliances
Dishwasher, Electric Range, Electric Water Heater, ENERGY STAR Qualified Appliances, Microwave, Plumbed For Ice Maker and Refrigerator
Heating
Electric and Heat Pump
Cooling
Central Air, Electric and Heat Pump
Fireplace
No
Exterior
Exterior
Rain Gutters
Roof
Shingle
Foundation
Slab
HOA
Has HOA
Yes
Services included
None
HOA fee
$210 Monthly
Additional Information
Styles
Craftsman and Traditional
Price per Sq Ft
$235
Listed By

Johnny Chappell, 919-737-2247, Compass -- Raleigh

Source

Triangle, MLS, MLS#: 10025676

Source Logo
Comments

Homes Similar to 5053 Lundy Dr #101, Raleigh, NC 27606

Related Blogs
Related Videos
HomeRaleighWrenwood
What's your home worth?
Have a top local Realtor give you a FREE Comparative Market Analysis