





$775,000
ACTIVEClaire Pope, 919-530-9415, Hodge&KittrellSothebysIntlRlty
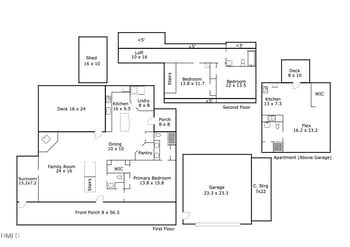
Triangle, MLS, MLS#: 10162505

Triangle, MLS #10162505
Triangle, MLS #2138329
Triangle, MLS #2138329
![]()
The data relating to real estate for sale on this web site comes in part from the Internet Data ExchangeTM Program of the Triangle MLS, Inc. of Cary. Real estate listings held by brokerage firms other than Raleigh Realty Inc are marked with the Internet Data Exchange TM logo or the Internet Data ExchangeTM thumbnaillogo (the TMLS logo) and detailed information about them includes the name of the listing firms.
Listings marked with an icon are provided courtesy of the Triangle MLS, Inc. of North Carolina, Internet Data Exchange Database. Listing firm has attempted to offer accurate data, but the Information is Not Guaranteed and buyers are advised to confirm all items.