Back to Search
1015 Harvey St, Raleigh, NC 27608
1015 Harvey St, Raleigh, NC 27608 3D Tour
1015 Harvey St, Raleigh, NC 27608 Explore 3D Tour
1015 Harvey St, Raleigh, NC 27608
1015 Harvey St, Raleigh, NC 27608
1015 Harvey St, Raleigh, NC 27608
1015 Harvey St, Raleigh, NC 27608

1015 Harvey St Raleigh, NC 27608

$2,550,000

PENDING
Beds
4
Baths
4
Sqft
4,887
Acres
0.37
Year
1920
Days on Site
179
Property Type
Residential
Sub Type
Single Family
Per Square Foot
$522
Date Listed
Nov 2, 2025

Description of 1015 Harvey St, Raleigh, NC 27608

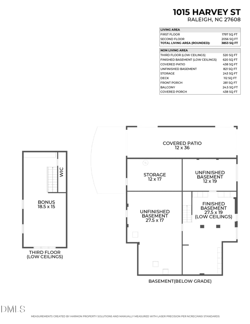
Listing details for 1015 Harvey St, Raleigh, NC 27608 : 1015 Harvey Street has a rich history of transformations! Built in 1920 in the historic Hayes Barton neighborhood, it began as a substantial residence. During World War II, the property was divided and converted into apartments to address housing shortages, a common fate for larger homes in the era. After its time as apartments, it transitioned back to a single-family home, undergoing significant updates and extensive modern renovations while retaining its classic charm, blending original features with modern elegance. It is considered a contributing resource to the Hayes Barton Historic District, which is listed on the National Register of Historic Places. Every inch of this beautifully updated home has been thoughtfully designed and no space is wasted. The completely renovated kitchen can easily be described as a chef's kitchen, featuring quartz countertops, a large island that easily seats six, deep storage drawers, prep sink, and top-of-the-line appliances: a Wolf gas range with six burners, infrared griddle, and double ovens; pot filler, Sub-Zero refrigerator with freezer drawers; and Sub-Zero wine fridge with beverage drawers. A walk-in china closet, walk-in pantry, and wet bar provide even more storage and function. The living room exudes character with gas logs, custom built-ins and beautiful natural light with French doors to the front porch. The adjoining den has a wood-burning fireplace with gas-starter and don't miss the storage / stereo closet. More French doors lead out to the back covered porch. Upstairs, the primary suite is a true retreat with a sitting area, stunning en suite bath featuring a soaking tub, large shower, and double vanities. Enjoy two double closets, a large walk-in closet, and even a workout nook overlooking the garden. Three additional bedrooms, two renovated full baths, laundry room, and oversized linen closet complete the second floor. The third floor offers flexible living space ideal for a 5th bedroom, playroom, reading nook, hobby area, or media room. The partially finished basement includes tall, personalized storage cabinets, abundant shelving, and drawers, and is perfect for an office, kids or teen hangout. A large unfinished section provides even more storage, and the unfinished, but upgraded, back room provides the perfect spot for a home gym. It includes walk-out access to the outdoor ''ping pong den'' and custom playhouse! The 12 x 38 covered porch, overlooking the lush, private backyard, is an outdoor living space to enjoy year-round. A meandering stone walkway leads to a charming fire pit in the back, ideal for gatherings under the stars. Newer roof, new HVAC systems, water heater, electrical and plumbing. This home truly offers the best of old Hayes Barton character and modern luxury. It's beautiful, functional, and perfectly designed for today's lifestyle. A 10 minute walk to Five Points. .4 miles to Glenwood South, 1 mile to The Village, close to downtown and The Village. 10 minutes to Downtown Raleigh. 2.9 miles to North Hills. 18 minutes to RDU. NOTE: The third floor has 544 finished square feet total; the majority is not 7' high. Also, the finished 620 sq.ft. of the basement ceiling height is 6'9'' after the sellers improved the space by adding a sheetrock ceiling.
Listing Updated : 04-29-2026 at 11:45 AM EDT
Listing Provided By

Cindy Roberts, 919-457-8181, Merriment Realty

Source

Triangle, MLS, MLS#: 10130996

Property History

DateEventPrice
4/29/2026
Pending sale
$2,550,000 0%
$522/sqft
Source:Triangle, MLS #10130996
4/26/2026
Price Change
$2,550,000 -5.4%
$522/sqft
Source:Triangle, MLS #10130996
11/2/2025
Listed for sale
$2,695,000
$551/sqft
Source:Triangle, MLS #10130996
Home Worth Check

Interested in 1015 Harvey St, Raleigh NC, 27608?

By proceeding, you consent to receive calls, texts and voicemails at the number you provided (may be recorded and may be autodialed and use prerecorded and artificial voices), and email, from Raleigh Realty about your inquiry and other home-related matters. Msg/data rates may apply. This consent applies even if you are on a do not call list and is not a condition of any purchase.

Location of 1015 Harvey St, Raleigh, NC 27608

Google Map
Mortgage Calculator
Listing Price
Down Payment
Interest Rate

Schools Near 1015 Harvey St, Raleigh, NC 27608

Homes Similar to 1015 Harvey St, Raleigh, NC 27608

Related Blogs

TMLS logo - Raleigh Realty Homes for Sale & Real Estate

The data relating to real estate for sale on this web site comes in part from the Internet Data ExchangeTM Program of the Triangle MLS, Inc. of Cary. Real estate listings held by brokerage firms other than Raleigh Realty Inc are marked with the Internet Data Exchange TM logo or the Internet Data ExchangeTM thumbnaillogo (the TMLS logo) and detailed information about them includes the name of the listing firms.

Listings marked with an icon are provided courtesy of the Triangle MLS, Inc. of North Carolina, Internet Data Exchange Database. Listing firm has attempted to offer accurate data, but the Information is Not Guaranteed and buyers are advised to confirm all items.

HomeRaleighHayes Barton
What's your home worth?
Have a top local Realtor give you a FREE Comparative Market Analysis